Falmec Virgola No-Drop 120 - Manuale d'uso

Falmec Virgola No-Drop 120

Cappa da cucina Falmec Virgola No-Drop 120 – Manuale d'uso, leggi gratuitamente online in formato PDF. Speriamo che questo ti aiuti a risolvere eventuali dubbi. Se hai ulteriori domande, contattaci tramite il modulo di contatto.

1 Pagina 1
2 Pagina 2
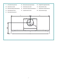
3 Pagina 3
4 Pagina 4
5 Pagina 5
6 Pagina 6
7 Pagina 7
8 Pagina 8
9 Pagina 9
10 Pagina 10
11 Pagina 11
12 Pagina 12
13 Pagina 13
14 Pagina 14
15 Pagina 15
16 Pagina 16
17 Pagina 17
18 Pagina 18
19 Pagina 19
Pagina: / 19

Indice:

  • Pagina 12 – ALIANO; staccare la cappa dall'alimentazione elettrica; AVVERTENZE PER L'INSTALLATORE; Esigere parti di ricambio originali.
  • Pagina 13 – parte riservata solo a personale qualificato; CARATTERISTICHE TECNICHE
  • Pagina 14 – SCARICO FUMI; FUNZIONAMENTO; PULSANTIERA ELETTRONICA; MANUTENZIONE; PULIZIA SUPERFICI ESTERNE
  • Pagina 15 – SMALTIMENTO A FINE VITA
Caricamento dell'istruzione

I N ST R U CT I O N S
B O O K L E T

f a l m e c . c o m

M

A

D

E

I

N

V

IT

T

O

R

IO

V

E

N

E

T

O

(

T

V

) - IT

A

L

Y

I T L I B R E T TO

I ST R UZ I O N I

E N I N ST R U CT I O N S

B O O K L E T

D E G E B R AU C H SA N W E I S U N G

F R M O D E

D ' E M P LO I

E S

M A N UA L D E I N ST R U C C I O N E S

R U

ɂɇɋɌɊɍɄɐɂɂ

P L I N ST R U KC JA

O B S Ł U G I

N L H A N D L E I D I N G

P T

M A N UA L D E I N ST R U Ç Õ E S

D K B R U G SA N I VS N I N G E R

S E I N ST R U K T I O N S B O K

F I O H J E K I R JA

N O B R U KSA N V I S N I N G

V i r g o l a N o - D r o p

"Caricamento dell'istruzione" significa che è necessario attendere finché il file non è caricato e pronto per la lettura online. Alcune istruzioni sono molto grandi e il tempo di caricamento dipende dalla velocità della tua connessione a Internet.

Sommario

Pagina 12 - ALIANO; staccare la cappa dall'alimentazione elettrica; AVVERTENZE PER L'INSTALLATORE; Esigere parti di ricambio originali.

13 IT ALIANO ISTRUZIONI DI SICUREZZA E AVVERTENZE Il lavoro d’installazione deve essere esegui-to da installatori competenti e qualificati, secondo quanto indicato nel presente libretto e rispettando le norme in vigore.Se il cavo di alimentazione o altri componenti sono danneggiati, la cappa NON dev...

Pagina 13 - parte riservata solo a personale qualificato; CARATTERISTICHE TECNICHE

14 DESTINAZIONE D'USO L’apparecchio è destinato solo ed esclusivamente per l'aspirazione di fumi generati dalla cottura di alimen-ti in ambito domestico, non professionale: qualsiasi utilizzo diverso da questo è improprio, può provoca-re danni a persone, cose ed animali domestici e solle-va il Costr...

Pagina 14 - SCARICO FUMI; FUNZIONAMENTO; PULSANTIERA ELETTRONICA; MANUTENZIONE; PULIZIA SUPERFICI ESTERNE

15 IT ALIANO SCARICO FUMI CAPPA AD EVACUAZIONE ESTERNA (ASPIRANTE) In questa versione, fumi e vapori vengono convogliati verso l'esterno attraverso il tubo di scarico.A tal fine, il raccordo d'uscita della cappa, deve essere collega-to tramite un tubo, ad un'uscita esterna. Il tubo d'uscita deve ave...

Altri modelli di cappe da cucina Falmec

Tutti i cappe da cucina Falmec