Pagina 4 - IT; INFORMAZIONI SULLA SICUREZZA; un’installazione o utilizzazione impropria.
IT 4 4 INFORMAZIONI SULLA SICUREZZA Per la propria sicurezza e per il corretto funzionamento dell’apparecchio, si prega di leggere attentamente questo manuale prima dell’installazione e della messa in funzione. Tenere queste istruzioni sempre insieme all’apparecchio, anche in caso di cessione o tras...
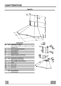
Pagina 7 - CARATTERISTICHE; Ingombro
IT 7 7 CARATTERISTICHE Ingombro 328 1000 360 1000 30 360 240 440 150 Componenti Rif. Q.tà Componenti di Prodotto 1 1 Corpo Cappa completo di: Comandi, Luce, Gruppo Ventilatore, Filtri 2 1 Camino Telescopico formato da: 2.1 1 Camino Superiore 2.2 1 Camino Inferiore 8 1 Griglia direzionata 9 1 Flangia...
Pagina 8 - INSTALLAZIONE; Foratura Parete e Fissaggio Staffe
IT 8 8 INSTALLAZIONE Foratura Parete e Fissaggio Staffe • Appoggiare come indicato la Staffa 7.1 a 935 mm sopra il piano di cottura, prestando atten- zione al livellamento della staffa stessa. • Segnare i centri dei Fori della Staffa. • Appoggiare come indicato una Staffa 7.2.1 a 1-2 mm dal soffitto...
Pagina 9 - Montaggio Corpo Cappa e fissaggio Camino; Connessioni
IT 9 9 Montaggio Corpo Cappa e fissaggio Camino • Prima di agganciare il Corpo Cappa,regolare a metà corsa le Viti Vr situate sui punti di aggancio del Corpo Cappa. • Agganciare il Corpo Cappa alla Staffa predisposta. • Ora è possibile livellare il corpo cappa agendo sulle viti Vr. • Nel caso in cui...
Pagina 10 - Montaggio Camino
IT 10 10 USCITA ARIA VERSIONE FILTRANTE • Praticare un foro ø 125 mm sull’eventuale Mensola soprastante la Cappa. • Inserire la Flangia di riduzione 9 sull’uscita del Corpo Cappa. • Collegare la Flangia al foro di uscita sulla Mensola soprastante la Cappa con un tubo rigido o flessibile di ø120 mm. ...
Pagina 11 - USO
IT 11 11 USO L V1 V2 V3 S L Luci Accende e spegne l’Impianto di Illuminazione. S Led Led accensione Motore. V1 Motore Accende e spegne il motore Aspirazione a velocità minima, adatta ad un ricambio d’aria continuo particolarmente silenzioso, in presenza di pochi vapori di cottura. V2 Velocità Veloci...
Pagina 12 - MANUTENZIONE; Filtri antigrasso; Filtri antiodore al Carbone attivo (Versione Filtrante); Illuminazione
IT 12 12 MANUTENZIONE Filtri antigrasso PULIZIA FILTRI ANTIGRASSO METALLICI AUTOPORTANTI • Sono lavabili anche in lavastoviglie, e necessitano di essere lavati ogni 2 mesi circa di utilizzo o più frequentemente, per un uso particolarmente intenso. • Togliere i Filtri uno alla volta, spingendoli vers...