Miele F 2813 Vi - Istruzioni
Manuale d'uso Miele F 2813 Vi
Sommario
Indice 2 Istruzioni per la sicurezza e avvertenze .......................................................... 5 Il Vostro contributo alla tutela dell'ambiente .................................................. 16 Installazione .............................................................................
Indice 3 Accessori ........................................................................................................... 61 Accessori in dotazione ........................................................................................ 61Accessori su richiesta ....................................
Istruzioni per la sicurezza e avvertenze 5 Questo elettrodomestico è conforme alle vigenti norme in materiadi sicurezza. Un uso improprio può comunque causare danni apersone e/o cose. Leggere attentamente le istruzioni d'uso e di montaggio allegateprima di mettere in funzione l'elettrodomestico. Con...
Istruzioni per la sicurezza e avvertenze 6 Uso corretto Il presente elettrodomestico è destinato esclusivamente all’uso domestico, o simile al domestico, qualora installato in ambienti lavo-rativi come ad esempio- negozi, uffici o ambienti di lavoro analoghi,- alberghi, pensioni o strutture ricet...
Istruzioni per la sicurezza e avvertenze 7 Bambini Tenere lontano dall'apparecchio per il freddo i bambini al di sotto degli 8 anni, in alternativa sorvegliarli costantemente. I ragazzini più grandi e responsabili (in ogni caso non al di sotto degli otto anni) possono utilizzare l'elettrodomesti...
Istruzioni per la sicurezza e avvertenze 8 Sicurezza tecnica Il circuito di refrigerante è testato per essere ermetico. L'apparec- chio per il freddo corrisponde alle normative sulla sicurezza e alle di-rettive europee. Questo elettrodomestico per il freddo contiene il refrigerante iso- butano (...
Istruzioni per la sicurezza e avvertenze 9 Maggiore è la quantità di refrigerante nell'apparecchio, più grande deve essere l'ambiente in cui viene installato. In caso di perdite, inun ambiente troppo piccolo può formarsi una miscela infiammabiledi gas e aria. In termini di dimensioni dell'ambiente...
Istruzioni per la sicurezza e avvertenze 10 Se l'umidità giunge a parti dell'elettrodomestico sotto tensione, può causare un corto circuito. Non utilizzare l'elettrodomestico inambienti umidi o soggetti a spruzzi d'acqua (ad es. garage, lavande-rie ecc.). Non utilizzare questo elettrodomestico i...
Istruzioni per la sicurezza e avvertenze 11 Eventuali pezzi difettosi possono essere sostituiti solo con ricambi originali Miele. Solo così Miele può garantire il pieno rispetto deglistandard di qualità previsti. Questo apparecchio per il freddo è dotato di una lampadina spe- ciale per soddisfar...
Istruzioni per la sicurezza e avvertenze 12 Se nell'elettrodomestico o nello sportello dell'elettrodomestico vengono conservati alimenti contenenti oli e grassi, accertarsi che ilgrasso che eventualmente fuoriesce non tocchi le parti dell'elettro-domestico in materiale plastico. Si possono formare...
Istruzioni per la sicurezza e avvertenze 14 Accessori e pezzi di ricambio Utilizzare esclusivamente accessori originali Miele. Se si montano o utilizzano altri accessori, il diritto alla garanzia e a prestazioni in ga-ranzia per vizi e/o difetti del prodotto decade. Miele garantisce la fornitura...
Istruzioni per la sicurezza e avvertenze 15 Trasporto Trasportare l'elettrodomestico sempre in posizione eretta e nell'imballaggio di trasporto affinché non possa danneggiarsi. Pericolo di ferirsi e di danneggiare l'elettrodomestico! Trasportare l'apparecchio facendosi aiutare da un'altra person...
Il Vostro contributo alla tutela dell'ambiente 16 Smaltimento imballaggio L’imballaggio ha lo scopo di proteggerela merce da eventuali danni che potreb-bero verificarsi durante le operazioni ditrasporto. I materiali utilizzati per l’im-ballaggio sono riciclabili, per cui sele-zionati secondo criteri...
Installazione *INSTALLATION* 17 Luogo di posizionamento Un ambiente secco e con possibilità diaerazione è l'ideale. Al momento di scegliere il luogo di posi-zionamento tenere conto che il consu-mo energetico dell'apparecchio aumen-ta se nelle immediate vicinanze si trova-no il riscaldamento, una cuc...
Installazione *INSTALLATION* 18 Pericolo di danneggiamento a causa dell'umidità dell'aria.In caso di umidità elevata la conden-sa può depositarsi sulle superficiesterne dell'apparecchio e causarnela corrosione.Per prevenire il fenomeno, posiziona-re l'apparecchio per il freddo in unambiente asciut...
Installazione *INSTALLATION* 19 Portata del ripiano nicchia Affinché l'apparecchio sia posizionatoin modo sicuro così da garantirne tuttele funzioni, la base della nicchia deveessere piana e in posizione orizzontale. La base della nicchia deve essere inmateriale rigido che non si piega. A causa dell...
Installazione *INSTALLATION* 20 Side-by-side Questo apparecchio per il freddo puòessere incassato con un altro apparec-chio “side-by-side”. Nella seguente pa-noramica è possibile verificare qualipossibilità di incasso side-by-side sonodisponibili per l'apparecchio. A seconda della situazione d'incas...
Installazione *INSTALLATION* 21 . . . senza parete intermedia Se tra gli elettrodomestici posizionatiaccanto non è presente una parete in-termedia, collegare gli apparecchi insie-me direttamente con l'ausilio del kit dimontaggio side-by-side. Inoltre occorreinstallare il riscaldamento parete lateral...
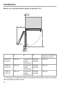
Installazione *INSTALLATION* 24 Misure con lo sportello aperto (angolo di apertura 115°) 10 mm D A B C A B* C* D (per un frontale delmobile di 19 mm) F 2412 Vi,F 2413 Vi 525 mm Frontale delmobile (19–38 mm) Manigliasportello 237 mm F 2802 Vi, F 2812 Vi 829 mm Frontale delmobile (19–38 mm) Manigliasp...
Installazione *INSTALLATION* 27 Incassare l'apparecchio Prima di iniziare... Leggere attentamente le istruzionid'uso e di montaggio prima di incas-sare l'apparecchio.L'apparecchio per il freddo deve es-sere montato da un installatore quali-ficato in base alle istruzioni d'uso edi montaggio. Il funzi...
Installazione *INSTALLATION* 28 Peso del frontale del mobile Prima di montare il frontale del mobileaccertarsi di non superare il peso con-sentito dei frontali da montare: apparecchio delfreddo peso max. delfrontale del mo-bile F 2412 Vi, F 2413 Vi 59 kg F 2802 Vi, F 2812 Vi 28 kg F 2902 Vi, F 2912 ...
Installazione *INSTALLATION* 29 Controllare la nicchia d'incasso Verificare le misure d'incasso (v. cap."Installazione", par. "Misure d'incas-so"). Controllare la posizione dell'allaccia-mento elettrico. La lunghezza del ca-vo di alimentazione è di 3 m. La presa non deve trovarsi...
Installazione *INSTALLATION* 31 2 Svitare la staffa di fissaggio . Sollevare l'apparecchio per il freddodal pallet con cautela e con l'aiuto didiverse persone dal retro. Pericolo di danneggiamento del pavimento.La movimentazione dell'apparecchioper il freddo può causare danni alpavimento.Fa...
Installazione *INSTALLATION* 32 Gli angolari antiribaltamento impedisco-no che l'apparecchio si ribalti. Inoltre con questi angolari la nicchiad'incasso è fissata in modo sicuro allepareti circostanti. Per ogni singolo apparecchio utilizza-re 2 angolari antiribaltamento , per la combinazione di ...
Installazione *INSTALLATION* 33 Insieme all'apparecchio sono fornitele viti di fissaggio per diversi casi diutilizzo o differenti materiali. Fissaggio a una parete in cemento Fissaggio a una parete in legno Fissaggio con cuneo in legno Collegare con gli angolari di fissaggio la nicchia d'incasso...
Installazione *INSTALLATION* 34 Introdurre l'apparecchio nella nicchia Quando si incassa l'apparecchio nel-la nicchia accertarsi che gli allaccia-menti elettrico e di acqua pulita nonsi danneggino. Se si desidera il posizionamento side-by-side di diversi apparecchi per ilfreddo, collegare gli appare...
Installazione *INSTALLATION* 35 Se l'apparecchio non dovesse entrarenella nicchia, p.es. a causa del pavi-mento non piano, aprire leggermentei piedini dell'apparecchio (v. cap. "In-stallazione", par. "Registrare l'appa-recchio") e spingere quest'ultimo nel-la nicchia. Togliere la...
Installazione *INSTALLATION* 37 Regolare i piedini posteriori con unnottolino d'arresto (rivestimento, no-ce, 8 mm) o con un cacciavite (TX20) . Regolare i piedini anteriori con unnottolino d'arresto (rivestimento, no-ce, 8 mm) o con un cacciavite (TX20) . Suggerimento: Procedere per fasi qu...
Installazione *INSTALLATION* 38 Per registrare l'apparecchio appog-giare una livella a bolla d'aria tramite idispositivi di regolazione sullo sportello dell'apparecchio. Ruotare i piedini e su entrambi i lati finché sulla tacca presente sullozoccolo si raggiunge la misura indica-tiva di 32...
Installazione *INSTALLATION* 39 Se non vi fosse la possibilità di fissarel'apparecchio in alto, è possibile fissarel'apparecchio con le fascette di fissag-gio laterali nella nicchia d'incasso: aprire le fascette di fissaggio laterali . Avvitare le fascette di fissaggio latera-li ai mobili ad...
Installazione *INSTALLATION* 40 Preparare il montaggio del frontaledel mobile Aprire lo sportello dell'apparecchio fi-no alla battuta d'arresto. Svitare i dispositivi di regolazione dallo sportello dell'apparecchio. Svitare i listelli angolari rispettiva- mente dei due lati dello sportello...
Installazione *INSTALLATION* 42 Fissare il telaio di montaggio in al- to sul frontale del mobile a secondadelle dimensioni con almeno 6-10 viti. Il telaio di montaggio è dotato rispetti-vamente di numerosi fori per differentiversioni di frontali del mobile. Al momento del fissaggio del telaio di...
Installazione *INSTALLATION* 43 Fissare e registrare il frontale del mo-bile Aprire lo sportello dell'apparecchio eagganciare il frontale del mobile con iltelaio di montaggio dall'alto sui perni filettati . Premere rispettivamente su entrambi ilati i listelli angolari nei telai bianchi in ...
Installazione *INSTALLATION* 44 Registrare il frontale del mobile inprofondità tramite le fessure nei listelliangolari . Registrare il frontale del mobile in al-tezza e lateralmente tramite i perni fi-lettati . Chiudere lo sportello dell'apparecchioe controllare la distanza rispetto aifron...
Installazione *INSTALLATION* 45 Montare l'angolare di fissaggio Con l'angolare di fissaggio si fissa ulte-riormente il frontale del mobile in bassoallo sportello dell'apparecchio. Montare l'angolare di fissaggio solodopo che l'apparecchio per il freddo(eventualmente side-by-side) è statoincassato e ...
Installazione *INSTALLATION* 46 Fissare la vite in basso sullo sportellodell'apparecchio. Applicare la copertura sull'angola- re di fissaggio . Agganciare la copertura sul canto- nale di fissaggio in modo che sia per-cettibile un "clic".
Installazione *INSTALLATION* 47 Fissare le coperture Prima di poter inserire la copertura nella fessura sopra l'apparecchio peril freddo, assemblare la copertura co-me segue: inserire le due parti della copertural'una dentro l'altra. Copertura del lato Inserire la copertura assemblata nell...
Installazione *INSTALLATION* 48 Montare sui due lati dello sportello lecoperture in plastica, premendole dal basso verso l'alto nella fessura tralo sportello dell'apparecchio e il fron-tale del mobile. Fissare sui due lati dell'apparecchiorispettivamente almeno 3 graffe per le coperture dell...
Installazione *INSTALLATION* 49 Fissare la griglia di aerazione dellozoccolo e schermo zoccolo Agganciare la griglia di aerazione del-lo zoccolo in basso sullo zoccolo apparecchio. Se necessario tagliare lo schermozoccolo alla lunghezza e all'altezzanecessarie (tra bordo inferiore zocco-lo e p...
Installazione *INSTALLATION* 50 Allacciamento elettrico Indicazioni relative all'allacciamentoacqua pulita Pericolo di ferimento e di dan- neggiamento a causa della chiusuranon corretta.Una chiusura non corretta può ferirele persone e/o causare danni mate-riali.L'allacciamento acqua pulita può es-...
Installazione *INSTALLATION* 51 Sostituire un tubo in acciaio inossi-dabile difettoso esclusivamente conun pezzo di ricambio originale Miele.È possibile acquistare il tubo in ac-ciaio inossidabile adatto agli alimentinello shop online di Miele, pressol'assistenza tecnica Miele oppurepresso i rivendi...
Installazione *INSTALLATION* 52 Allacciamento elettrico L'apparecchio deve essere collegatoesclusivamente al cavo di alimentazionein dotazione a una presa di sicurezza. Posizionare l'elettrodomestico in modoche la presa risulti accessibile. Se lapresa non fosse accessibile, assicurarsiche al momento...
Installazione *INSTALLATION* 53 Collegare l'apparecchio Inserire la spina sul retro dell'appa-recchio. Fare attenzione che la spina dell'appa-recchio sia agganciata correttamente. Inserire la spina nella presa. L'apparecchio è ora collegato alla reteelettrica.
Risparmiare energia 54 Consumo energetico nor-male Consumo energetico piùalto Posizionamento/manutenzione in ambienti aerati. in ambienti chiusi, non aera-ti. non direttamente esposto araggi solari. direttamente esposto a raggisolari. non adiacente a una fonte dicalore (termosifoni, cucinaelettrica)...
Risparmiare energia 55 Consumo energetico nor-male Consumo energetico piùalto Uso Disposizione di cassetti e ri-piani come da fornitura. Aprire lo sportello solo quan-do necessario e per brevetempo. Disporre gli alimentiin modo ordinato. Aprire lo sportello di fre-quente e a lungo comportauna perdit...
Descrizione apparecchio 56 F 2412 Vi, F 2413 Vi a Display b Interruttore on/off c Balconcino nello sportello dell'apparecchio d Illuminazione interna e Ripiani f Ice maker g Contenitore dei cubetti di ghiaccio h Cesti di congelamento i Apertura automatica dello sportello (Push2open/Pull2open) j Filt...
Descrizione apparecchio 58 Schermata principale °C -18 1 2 3 4 5 a Spia SuperFrost(visibile solo se è stata attivata la funzione SuperFrost) b Visualizzazione temperatura (impostata) c Tasto sensore per impostare la temperatura d Spia Miele@home stato di connessione (visibile solo se è s...
Descrizione apparecchio 59 Modalità impostazioni Possono essere selezionate le seguenti funzioni e in parte modificate le rispettiveimpostazioni: Simbo-lo Funzionamento Lingua impostare Luminosità display impostare (da più scuro a più chiaro) Schema colore impostare (scuro o chiaro) / Segn...
Descrizione apparecchio 60 Miele@home Configurare, disattivare o controllare lo stato diconnessione WLAN (v. cap. “Altre impostazioni”). * Modalità fiera Spegnere * (visibile solo con Modalità fiera attivo, v. cap. “Altre impostazioni”) Impostazioni di serie Resettare le impostazioni allo stat...
Accessori 61 Accessori in dotazione Spina apparecchio Filtro acqua (filtro IntensiveClear) Il filtro IntensiveClear installato giàsull'apparecchio filtra l'acqua potabileper preparare i cubetti di ghiaccio. Il filtro IntensiveClear non deve esseresostituito, è sufficiente se viene pulito(v. cap. “Pu...
Accessori 62 Gli accessori si possono ordinare eacquistare su internet, presso il servi-zio di assistenza tecnica Miele o unnegozio specializzato Miele. Shop online di Miele: shop.miele.it
Primo avvio 63 Al primo avvio Dopo il trasporto lasciare l'apparec-chio in piedi per ca. 1 ora prima di al-lacciarlo alla rete elettrica. Si prevengono in questo modo even-tuali anomalie nel funzionamento del-l'apparecchio. Materiali d'imballaggio Rimuovere tutti i materiali d'imballag-gio dal van...
Primo avvio 64 Miele@home L'apparecchio è dotato di un moduloWLAN integrato. Di serie la connessione in rete è disat-tivata. Per l'utilizzo sono necessari: - una rete WLAN - l'app Miele - un account Miele. L'account si può creare tramite la app Miele. La app Miele guida l'utente nel collega-mento tr...
Primo avvio 65 Comandi elettrodomestico Il display touch può graffiarsi con og-getti appuntiti o affilati.Toccare il display touch solo con ledita. Se le dita sono fredde è possibileche il display touch non reagisca. °C -18 I tasti sensore situati sotto la spia dellatemperatura possono ess...
Accendere e spegnere l'apparecchio 67 Accendere l'elettrodomestico Aprire lo sportello. Accendere l'apparecchio, premendol'interruttore on/off. L'apparecchio inizia a raffreddare e laluce interna si accende quando si aprelo sportello. A display dell'apparecchio compare Miele e poi la schermata p...
Accendere e spegnere l'apparecchio 68 In caso di assenza prolungata Se l'apparecchio non viene usato perun periodo di tempo prolungato: spegnere l'elettrodomestico. Sfilare la spina dalla presa oppure di-sinserire l'interruttore principale del-l'impianto elettrico. Pericolo di danneggiamento a...
Altre impostazioni 69 Con la modalità impostazioni si pos- sono selezionare le diverse funzioni del-l'apparecchio, in parte modificarne leimpostazioni e quindi adattare l'appa-recchio alle proprie esigenze. Di seguito sono descritte solo le funzio-ni nella modalità impostazioni che ri- chiedono ...
Altre impostazioni 70 Attivare o disattivare Modalità risparmio Modalità risparmio si consiglia se ad es. durante le ferie non si desidera spegne-re completamente l'apparecchio o senon è necessaria una potenza di raf-freddamento elevata. Il consumo ener-getico nel Modalità risparmio è più basso ...
Altre impostazioni 71 Eseguire Autodiagnosi Eseguire Autodiagnosi , se si ha la sensa- zione che l'apparecchio non funzioni inmodo corretto e occorre verificare se visono anomalie. Selezionare la modalità impostazioni con i tasti sensore e Autodia- gnosi e confermare la selezione con OK ....
Altre impostazioni 72 Attivare Assistente sportello Si può scegliere tra i due assistentisportello Push2open e Pull2open . Di serie è impostato l'assistente sportel-lo Push2open . L'assistente sportello Push2open è adat- ta ai frontali dei mobili senza maniglia.Lo sportello dell'apparecchio si a...
Altre impostazioni 73 - Regolare la durata AutoClose È possibile inoltre regolare il tempo incui lo sportello deve rimanere apertofinché si chiude da sé. Selezionare la modalità impostazioni con i tasti sensore e Assisten- te sportello e confermare la selezione con OK . Selezionare la moda...
Altre impostazioni 74 Disattivare Assistente sportel-lo Selezionare la modalità impostazioni con i tasti sensore e Assisten- te sportello e confermare la selezione con OK . Selezionare con i tasti sensore e Modalità e confermare la selezione con OK . Selezionare con i tasti sensor...
Altre impostazioni 75 Attivare Miele@home Occorre attivare nuovamente la con-nessione, se Miele@home era già sta-ta attivata una volta e la connessionepoi era stata staccata. Selezionare la modalità impostazioni con i tasti sensore e Miele@home e confermare la selezione con OK . Selezionar...
Altre impostazioni 76 Disattivare Modalità fiera La modalità fiera consente di presen-tare l'apparecchio senza attivare il raffreddamento . Per l'uso domestico, questa funzione non ha alcun utilizzo. Qualora la modalità fiera fosse stataattivata di serie, a display appare . Selezionare la mo...
Altre impostazioni 77 Resettare le impostazioni di serie È possibile resettare le impostazioni dell'apparecchio riportandole alle imposta-zioni di serie. Resettare le impostazioni dell'apparecchio per il freddo alle condizioni di fornitu-ra, quando si smaltisce, si vende l'apparecchio oppure si me...
Altre impostazioni 80 Attivare, disattivare o resettareSpia filtro acqua Spia filtro acqua ricorda ca. ogni 6 mesi, a seconda della quantità dei cubetti dighiaccio prodotti, che il filtro acqua de-ve essere pulito. Sul display compare Pulire filtro acqua . Per sapere come pulire il filtro acquale...
Altre impostazioni 81 Resettare Spia filtro acqua Dopo aver pulito o sostituito il filtro ac-qua, resettare Spia filtro acqua , affinché dopo 6 mesi possa essere nuovamentevisualizzato. Se non si resetta l'indicazione, conti-nuerà a comparire. Selezionare la modalità impostazioni con i tasti s...
La giusta temperatura 82 Impostare la giusta temperatura è moltoimportante per la conservazione deglialimenti. Gli alimenti si deteriorano infretta per via dei microrganismi, cosache può essere impedita o rallentatacon la giusta temperatura di conserva-zione. La temperatura influenza la velo-cità di...
La giusta temperatura 83 Valori temperatura impostabili La temperatura è impostabile da -14 °Ca -24 °C. Il raggiungimento della temperaturapiù bassa dipende dal luogo di posi-zionamento e dalla temperatura am-biente.Se la temperatura ambiente è eleva-ta, è possibile che la temperatura inassoluto più...
Utilizzo della funzione SuperFrost 84 Funzione SuperFrost Per congelare correttamente alimentifreschi occorre attivare la funzioneSuperFrost prima che inizi il processo dicongelamento. In questo modo gli alimenti si congela-no rapidamente e valore nutritivo, vita-mine, aspetto e sapore rimangono i...
Utilizzo della funzione SuperFrost 85 Suggerimento: Per risparmiare energia, la funzione SuperFrost può anche esse-re disattivata manualmente non appenaall'interno del vano congelatore si rag-giunge una temperatura costante di -18 °C. Controllare la temperatura nel vanocongelatore.
Allarmi temperatura e sportello 86 L'apparecchio è dotato di un sistema diallarme che si attiva quando la tempera-tura nel vano congelatore si innalza op-pure per evitare perdite di freddo se losportello rimane inavvertitamente aper-to. Allarme temperatura Se la temperatura nel vano congelatoreè tro...
Allarmi temperatura e sportello 87 Disattivare l'allarme temperatura inanticipo Prima di disattivare l'allarme tempe-ratura, occorre rilevare la causadell'allarme ed eliminarla. Qualora dovesse disturbare, il segnaleacustico può essere comunque spentoin anticipo. Toccare il tasto sensore OK . Il s...
Disposizione degli alimenti 88 Rimuovere o spostare i balcon-cini all'interno dello sportellodell'apparecchio Rimuovere o spostare i balconcininello sportello solo quando sonovuoti. Afferrare il balconcino con entrambele mani sul telaio di supporto e solle-varli di un poco in modo che esso siasoll...
Disposizione degli alimenti 89 Togliere il ripiano sopra l'ice-maker Afferrare con le mani davanti in bassoil ripiano e premere su entrambi i latila resistenza . Quando si estrae e si riposiziona il ri-piano accertarsi che le pareti lateralinon vengano danneggiate. Estrarre il ripiano con caut...
Disposizione degli alimenti 90 Per staccare i supporti, ruotare la fes-sure nei perni con un oggetto ade-guato in posizione orizzontale (1.). Estrarre i perni dai supporti (2.). Estrarre la parete divisoria, tirandolaverso l'alto. Per reinserire la parete divisoria por-tare i supporti in pos...
Congelamento e conservazione 92 Capacità massima di congela-zione Affinché gli alimenti si congelino rapida-mente fino al nucleo, si consigli di nonsuperare la capacità di congelazione.La capacità massima di congelazioneentro le 24 ore è riportata sulla targhettadati "Capacità di congelazio-ne ....
Congelamento e conservazione 93 Congelare alimenti freschi Congelare solo alimenti freschi e dibuona qualità. Da sapere - Alimenti adatti al congelamento : carne fresca, pollame, selvaggina,pesce, verdura, erbe, frutta cruda,latticini, dolci, residui di cibo, tuorlo ealbume d'uovo e molti cibi preco...
Congelamento e conservazione 94 Prima di conservare gli alimen-ti Per una quantità superiore a 2 kg dialimenti freschi, poco prima di intro-durre gli alimenti nel congelatore atti-vare la funzione SuperFrost (v. “Utiliz-zo di SuperFrost”). Gli alimenti già presenti accumulanocosì una riserva di fr...
Congelamento e conservazione 95 Gruppo di alimenti Tempo diconserva-zione(mesi) Gelato da 2 a 6 Pane, dolci da 2 a 6 Formaggio da 2 a 4 Pesce, grasso da 1 a 2 Pesce, magro da 1 a 5 Insaccati, prosciutto da 1 a 3 Selvaggina, maiale da 1 a 12 Pollame, manzo da 2 a 10 Verdura, frutta da 6 a 18 Erbette ...
Produzione di cubetti di ghiaccio 96 L'ice-maker automatico necessita diun allacciamento all'acqua pulita perfunzionare (v. cap. “Installazione”, par.Allacciamento acqua pulita“). Rischio per la salute a causa di acqua in cui sono presenti batteri.Il consumo di acqua non pulita puòcausare malattie...
Sbrinamento automatico 98 L'elettrodomestico è dotato di sistema“NoFrost”, grazie al quale si sbrina auto-maticamente. L'umidità che ne deriva si depositasull'evaporatore; di tanto in tanto sisbrina ed evapora automaticamente. Grazie allo sbrinamento automatico nelvano congelatore non si forma maigh...
Pulizia e manutenzione 99 Fare attenzione che non giunga del-l'acqua all'elettronica o all'illumina-zione. Pericolo di danneggiamento a causa della penetrazione di umidità.Il vapore di un apparecchio a vaporepuò danneggiare le plastiche e icomponenti elettrici.Non utilizzare mai un apparecchio ava...
Pulizia e manutenzione 100 Prima di pulire l'apparecchio Spegnere l'apparecchio, premendol'interruttore on/off. Togliere gli alimenti dal congelatore econservarli in un luogo fresco. Per pulirle, smontare tutte le ulterioriparti interne, estraibili dell'apparec-chio (v. cap. "Modificare la...
Pulizia e manutenzione 101 Pulire la guarnizione sportello Pericolo di danneggiamento a causa di una pulizia errata.La guarnizione dello sportello trattatacon oli o grassi può diventare poro-sa.Non trattare la guarnizione dellosportello con oli o grassi. Pulire regolarmente la guarnizionedello s...
Pulizia e manutenzione 103 Dopo la pulizia Sistemare tutte le parti nell'apparec-chio. Riaccendere l'apparecchio del fred-do. Attivare la funzione SuperFrost per breve tempo affinché il congelatoreraffreddi rapidamente. Introdurre i cesti di congelamento congli alimenti nel vano congelator...
Filtro dell'acqua 104 L'apparecchio è fornito con un filtro ac-qua (IntensiveClear) che filtra l'acquapotabile per preparare i cubetti di ghiac-cio. Il filtro IntensiveClear filtra le sostanzein sospensione dall'acqua di rete, manon batteri e microbi. Il filtro dell'acqua non deve essere so-stituito...
Cosa fare se... 105 La maggior parte dei guasti che si verificano durante l'uso quotidiano dell'appa-recchio può essere eliminata personalmente, senza difficoltà. In molti casi è possi-bile risparmiare tempo e costi senza doversi necessariamente rivolgere all'assi-stenza tecnica. Le tabelle che segu...
Cosa fare se... 109 Segnalazioni a display Segnalazione Causa e rimedio Il segnale acustico suo-na e a display comparela segnalazione La tem- peratura di congelamentoera troppo alta/Temperaturamax.: °C . La temperatura nell'apparecchio è aumentata tanto.Alcuni motivi potrebbero essere, ad es. – lo s...
Cosa fare se... 110 Segnalazione Causa e rimedio Il display temperatura èscuro e a display com-pare . La funzione Modalità Sabbath è attiva: la luce interna è spenta e l'apparecchio raffredda. È possibile spegnere in qualsiasi momento la mo-dalità Sabbath (v. “Altre impostazioni”, par. “Atti...
Cosa fare se... 114 L'illuminazione interna non funziona Problema Causa e rimedio L'illuminazione internanon funziona. L'elettrodomestico non è acceso. Accendere l'elettrodomestico. La funzione Modalità Sabbath è attiva: la spia della temperatura è oscurata e a display è acceso il simbo-lo . S...
Possibili cause di rumori 115 Rumori “nor-mali” A cosa attribuirli? Ronzio Il ronzio deriva dal motore (compressore). Per breve tempo puòdiventare più forte quando si accende il motore. Gorgoglio Il gorgoglio deriva dal refrigerante, che scorre nei tubi. Clic Questo rumore è percettibile quando il t...
Assistenza tecnica 116 Contatti in caso di guasto In caso di guasti che non si è in gradodi risolvere da soli, contattare il negoziospecializzato Miele o il servizio di assi-stenza tecnica Miele. È possibile visualizzare i contenuti on-line dell'assistenza tecnica sottowww.miele.it/elettrodomestico/...
Garanzia Italia 117 Oltre ai diritti di garanzia riconosciuti per legge al consumatore nei confronti del venditore, Miele Italiaconcede all'acquirente un'ulteriore garanzia convenzionale, qui di seguito definita. I Durata e decorrenza 1. La garanzia è concessa per un periodo di 24 mesi: a) sugli ele...
Dichiarazione di conformità 118 Miele dichiara che questo congelatore èconforme alla direttiva 2014/53/UE. Il testo completo della dichiarazione diconformità UE è disponibile ai seguentiindirizzi internet: - Prodotti, download, www.miele.it - Service, richiedere informazioni, istru- zioni d'uso, su ...
Diritti d'autore e licenze 119 Per usare e gestire il prodotto, Miele utilizza software propri o di terzi non soggettiad una cosiddetta condizione di licenza Open Source. Questo software/questecomponenti software sono protetti dal punto di vista dei diritti. Sono tutelati i poteriin capo a Miele e a...
Miele Istruzioni
-
Miele APWM 063
Manuale di installazione
-
Miele APWM 020
Manuale d'uso
-
Miele APWM 020
Manuale di installazione
-
Miele SC
Manuale di installazione
-
Miele PR
Manuale di installazione
-
Miele FP 900
Manuale di installazione
-
Miele RP 900
Manuale di installazione
-
Miele APWM 019
Manuale d'uso
-
Miele APWM 019
Manuale di installazione
-
Miele PR 900
Manuale di installazione
-
Miele A 830/1
Manuale d'uso
-
Miele TT 86
Manuale d'uso
-
Miele RP 1150
Manuale di installazione
-
Miele APCL 001
Manuale di installazione
-
Miele E 473/2
Manuale d'uso
-
Miele FFK 01
Manuale di installazione
-
Miele FFK 01
Manuale
-
Miele DS 5
Manuale di installazione
-
Miele DS 10
Manuale di installazione
-
Miele DOS K 85 flex
Manuale di installazione