Miele PDW 909 [EL DP DD] - Istruzioni
Miele PDW 909 [EL DP DD] - Manuale d'uso, Manuale, Manuale di installazione, Guida rapida in formato PDF online
Istruzioni:
Manuale d'uso Miele PDW 909 [EL DP DD]
Manuale Miele PDW 909 [EL DP DD]
Sommario
Indice 2 Il Vostro contributo alla tutela dell'ambiente ......................................................................... 8 Smaltimento delle apparecchiature............................................................................................ 8 Indicazioni per la sicurezza e avvertenz...
Indice 3 Timer ............................................................................................................................................... 40 Aspetti particolari nello svolgimento del programma .............................................................. 42 Centrifuga ............
Indice 4 Aprire lo sportello se il tubo di scarico è intasato e/o manca elettricità ............................... 68 Pulizia e manutenzione ............................................................................................................... 70 Formazione di ruggine.........................
Indice 5 Comandi/display ........................................................................................................................... 109 Lingua ......................................................................................................................................... 10...
Indice 7 Connessione in rete ..................................................................................................................... 133 Istruzioni per il pairing................................................................................................................... 133 Apri...
Il Vostro contributo alla tutela dell'ambiente 8 Smaltimento dell'imballaggio L'imballaggio ha lo scopo di proteggere la merce da eventuali danni ditrasporto. I materiali utilizzati per l'imballaggio sono riciclabili, in quan-to selezionati secondo criteri di rispetto dell'ambiente e di facilità dis...
Indicazioni per la sicurezza e avvertenze 9 Istruzioni di funzionamento originali Spiegazione delle istruzioni di sicurezza e avvertenze sullamacchina Leggere le istruzioni d'uso Leggere le istruzioni p.es. le istruzioni di installazione Attenzione, superfici molto calde Attenzione, tensione fino a ...
Indicazioni per la sicurezza e avvertenze 10 Uso corretto La lavatrice deve essere usata solo per lavare capi e tessuti che il produttore ha dichiarato lavabili in acqua sull'etichetta. Qualsiasi altrouso può rivelarsi pericoloso. La casa produttrice non risponde di dannicausati da un uso diverso ...
Indicazioni per la sicurezza e avvertenze 11 Evitare i seguenti errori Non utilizzare mai per nessun motivo nella colonna bucato detersivi contenenti solventi (ad es. benzina solvente). Questi prodotti potreb-bero danneggiare dei componenti della macchina e generare vaporitossici. Pericolo di espl...
Indicazioni per la sicurezza e avvertenze 12 Sicurezza tecnica Prima dell'installazione controllare che le macchine non presentino danni visibili esterni. Una colonna bucato danneggiata non può essereinstallata o messa in funzione. La sicurezza elettrica è garantita solo se le macchine sono alla...
Indicazioni per la sicurezza e avvertenze 13 Attenersi a quanto riportato nei capitoli "Installazione e allaccia- menti" e "Dati tecnici". Le spine della colonna bucato devono essere sempre accessibili af- finché entrambe le macchine possano essere staccata dalla rete elet-trica ...
Indicazioni per la sicurezza e avvertenze 15 Impiego corretto Il carico massimo è di 10 kg di biancheria asciutta. Carichi parziali per singoli programmi sono indicati nel documento "Elenco program-mi". Prima della messa in servizio rimuovere le barre di trasporto della lavatrice (v. cap...
Indicazioni per la sicurezza e avvertenze 16 Non appoggiare sul coperchio della macchina prodotti chimici (de- tersivo liquido, additivi per il lavaggio). Possono causare decolorazionio anche danni alla vernice. I prodotti chimici che dovessero inavverti-tamente giungere sulla superficie devono es...
Indicazioni per la sicurezza e avvertenze 17 Togliere dalle tasche della biancheria da asciugare tutti gli oggetti eventualmente presenti (p.es. accendini, fiammiferi, chiavi). Avvertenza: non spegnere mai l'essiccatoio prima che il program- ma sia terminato, a meno che tutto il contenuto del ce...
Indicazioni per la sicurezza e avvertenze 18 Cloro e possibili danni ai componenti L'uso del cloro (candeggina) aumenta la probabilità di danneggiare alcuni componenti della macchina. L'impiego di prodotti contenenti cloro, come p.es. ipoclorito di so- dio e candeggianti al cloro in polvere, può...
Indicazioni per la sicurezza e avvertenze 19 Accessori Gli unici accessori che possono essere montati o utilizzati sono quelli espressamente autorizzati da Miele. Se si montano o utilizzanoaltri accessori, il diritto alla garanzia e a prestazioni in garanzia per vizie/o difetti del prodotto decade...
Uso 22 Pannello comandi ⑥ ① ② ③ ④ ⑤ ⑦ ⑧ ⑨ ⑩ ⑪ ⑫ a Essiccatoio, tasto sensore lingua Per selezionare la lingua dei comandi. Allafine del programma viene nuovamente vi-sualizzata la lingua del gestore. b Essiccatoio, tasto sensore indietro Consente di ritornare al livello precedentenel menù. c E...
Uso 23 Display touch e tasti sensore I tasti sensore , e Start/Stop nonché le rappresentazioni a di- splay reagiscono al contatto. A ogni contatto è associato un segnaleacustico. Il volume dell'acustica tasti può essere modificato o spento(v. cap. "Livello gestore"). Il pannello comandi...
Uso 24 Menù principale Dopo l'accensione dell'essiccatoio, a display compare il menù princi-pale. Dal menù principale si può accedere a tutti i sottomenù impor-tanti. Toccando il tasto sensore si torna in qualsiasi momento al menù principale. I valori impostati precedentemente non vengono memo-riz...
Uso 25 11:02 Timer Cotoneresistente 9,0/9,9 kg °C Giri/min 90 0:56 h 1300 Elenco Opzioni Dettagli 11:02 OK Prelavaggio Risciacquo plus Ammollo Opzioni Stopcon acqua Toccare una o più opzioni per selezionarle. Le opzioni selezionate sono contrassegnate in arancione. Per disattivare ...
Uso 26 Impostare i valorinumerici In alcuni menù è possibile impostare dei valori numerici. Nel seguente esempio si imposta l'orologio. Per giungere a questo li-vello, v. la descrizione al capitolo " Livello gestore ". OK 12 00 10 58 14 02 11 59 13 01 Orologio Immettere i valori med...
Uso 27 Menù a tendina Nel seguente esempio viene descritta l'indicazione per un program-ma di lavaggio in corso. Per giungere a questo livello, v. la descrizioneal capitolo "Avvio del programma - Fine programma". 11:02 2:27 Cotoneresistente Lavare e riscaldare Durata res. Stato Se s...
Uso 28 Utilizzo della variante per lavanderie A seconda della programmazione, il menù di partenza può apparire di-verso (v. cap. "Livello gestore", par. "Comandi"). L'uso semplificato è possibile grazie a una selezione rapida. Le perso-ne che utilizzano la macchina non possono modifi...
Lavaggio 29 Preparare la fase di lavaggio Svuotare le tasche Svuotare tutte le tasche. Danni dovuti a corpi estranei. Chiodi, monete, graffette ecc. possono danneggiare sia la macchinache i tessuti.Prima di fare il bucato, controllare che nella biancheria non ci sianocorpi estranei e rimuoverli ...
Lavaggio 30 Caricare e accendere la lavatrice Caricare la lavatri-ce Preparare la lavatrice. Accendere la lavatrice con il tasto . Appare il messaggio di benvenuto. Aprire lo sportello di carico dalla maniglia. Introdurre nel cesto la biancheria distesa, senza pressarla.
Lavaggio 31 Controllare che tra sportello e apertura di carico non siano rima- sti impigliati dei capi di biancheria. Chiudere lo sportello di carico premendolo nell'aggancio. Lo sportello di carico si aggancia, ma non è ancora bloccato. Il bloccodello sportello avviene in automatico, non appena...
Lavaggio 32 Lavare con il cassetto detersivi Aggiunta di deter-sivo tramite il cas-setto detersivi Per i programmi standard, versare il detersivo in polvere per il lavag-gio principale nella vaschetta . Se lo si desidera, versare il deter- sivo per il prelavaggio nella vaschetta , l'ammorbid...
Lavaggio 33 Impiego di prodot-ti coloranti, deco-loranti e decalcificanti Prodotti coloranti, decoloranti e decalcificanti devono essere adatti al-l'impiego in lavatrice. Rispettare assolutamente le indicazioni d'usodel produttore. Dosaggio di deter-sivo Dosaggio di deter-sivo Evitare assolutamente ...
Lavaggio 34 Selezionare un programma Programmi Le possibilità per selezionare un programma sono diverse. 11:02 Programmi Preferiti Gestore È possibile selezionare un programma nel menù Programmi . Toccare l'area di selezione Programmi . 11:02 Cotoneresistente Cotonecolorato Cot. colora...
Lavaggio 35 Nei programmi preferiti la maggior parte delle impostazioni dei pro-grammi è già stabilita e non può essere modificata. Selezionare le impostazioni del programma Scegliere la quan-tità di carico Per consentire un dosaggio esterno in base al carico e uno svolgi-mento adeguato del programm...
Lavaggio 38 Selezionare le opzioni Selezionare le op-zioni È possibile selezionare delle opzioni per alcuni programmi di lavaggio. Toccare l'area di selezione Opzioni . 11:02 Timer Cotoneresistente 9,0/9,9 kg °C Giri/min 90 0:56 h 1300 Elenco Opzioni Dettagli 11:02 OK Prelavaggio R...
Lavaggio 39 Avvio del programma - Fine programma Avviare un pro-gramma Non appena è possibile avviare un programma, lampeggia il tasto sen-sore Start/Stop . Toccare il tasto sensore Start/Stop . Si blocca lo sportello (simbolo ) e si avvia il programma di lavaggio. 11:02 2:27 Cotoneresistent...
Lavaggio 40 Se lavati con un altro programma, gli indumenti che non sono statitolti potrebbero restringersi o tingersi.Prelevare tutti i capi dal cesto. Controllare che nella guarnizione dello sportello non siano rimastiimpigliati dei corpi estranei. Spegnere la lavatrice con il tasto . Sugger...
Lavaggio 41 Dopo l'avvio di programma è possibile modificare o cancellare il po-sticipo avvio selezionato solo interrompendo il programma. Si può avviare il programma in qualsiasi momento. Toccare l'area di selezione Avvio immediato .
Lavaggio 42 Aspetti particolari nello svolgimento del programma Centrifuga Velocità di centrifu-gazione (centrifugafinale) Dopo la selezione del programma, nel menù di preavvio si scegliesempre il numero di giri massimo in centrifugazione per il programmadi lavaggio visualizzato a display. Una riduz...
Lavaggio 43 Svolgimento rapi-do Con la funzione Svolgimento rapido è possibile saltare in avanti o in-dietro quando il programma è in corso. Lo svolgimento del programmaviene proseguito a partire dal blocco programma selezionato. Se un programma viene interrotto con il tasto sensore Start/Stop , la...
Lavaggio 45 La funzione è possibile solo se nel livello gestore sono stati selezio-nati il Box Connector, le pompe di dosaggio e il dosaggio automatico,v. cap. "Livello gestore". Premere il tasto funzione Dosaggio . Selezionare la pompa di dosaggio e la quantità di dosaggio desidera-t...
Asciugatura 47 1. Cura della biancheria Lavaggio primadell'asciugatura Lavare accuratamente i capi particolarmente sporchi. Utilizzare unaquantità sufficiente di detersivo e selezionare una temperatura eleva-ta. In caso di dubbi, lavarli più volte. Se per il lavaggio della biancheria sono stati util...
Asciugatura 48 Introdurre la bian-cheria nell'essic-catoio I capi si possono danneggiare.Prima di introdurre la biancheria, leggere il capitolo “1. Cura dellabiancheria". Aprire lo sportello. Introdurre la biancheria nell'essiccatoio. Pericolo di danneggiamento a causa della biancheria che s...
Asciugatura 49 Il display passa al menù base del programma di asciugatura. In alternativa è possibile selezionare un programma dall'elenco deiprogrammi preferiti. I programmi preimpostati sotto Preferiti possono essere modificati dal livello gestore. 11:02 Programmi Preferiti Gestore Guida...
Asciugatura 51 5. Avviare un programma Gettoniera (opzio-nale) Se la macchina è allacciata a una gettoniera, seguire le indicazioni peril pagamento che compaiono sul display. Possibile perdita di valore aprendo lo sportello o in caso di interru-zione del programma.A seconda dell'impostazione, aprend...
Asciugatura 52 Durata del pro-gramma/Previsio-ne durata residua La durata del programma dipende dalla quantità, dal tipo e dall'umidi-tà residua della biancheria. La durata visualizzata dei programmi, cheprevedono vari livelli di asciugatura, può variare o "saltare". L'elettro-nica dell'essi...
Modificare il programma 54 Lavatrice Cambiare pro-gramma Cambiare program-ma di lavaggio Per far partire un altro programma è necessario prima interrompere eterminare quello in corso. Interrompere ilprogramma Un programma di lavaggio può essere interrotto e terminato in qual-siasi momento. I program...
Modificare il programma 56 Essiccatoio Cambiare il pro-gramma in corso Non è più possibile cambiare il programma in corso (protezione controinterventi indesiderati). Per selezionare un nuovo programma si dovràprima interrompere quello in corso. Pericolo di incendio a causa di un utilizzo errato. L...
Modificare il programma 57 Aggiungere la biancheria oppure prelevarla. Chiudere lo sportello. Toccare il tasto sensore Start/Stop , affinché il posticipo dell'avvio continui a scorrere. Durata residua Delle modifiche al programma possono causare dei salti di tempo suldisplay.
Cosa fare se... 58 Guida guasti Sblocco d'emergenza sportello in caso di interruzione della corrente Lo sportello non si apre. Attenzione! Il cesto in movimento costituisce un serio pericolo di ferirsi e con la lisci- via molto calda sussiste il pericolo di ustionarsi.Prima di impiegare la chiave ...
Cosa fare se... 59 Assistenza tecnica In caso di guasti e anomalie rivolgersi all'assistenza tecnica Miele. Comunicare modello, n. di serie (SN) e n. mat. (Mat.-Nr.). Rilevare queste informazioni dallatarghetta dati. La targhetta dati è visibile a sportello di carico aperto in alto nell'anello oppu-...
Cosa fare se... 61 Interruzione del programma e segnalazione di guasto Problema Causa e rimedio F - Guasto scarico idrico. Se la macchina non si riavvia,contattare l'assistenza tec-nica. Lo scarico dell'acqua è bloccato o intasato. Il tubo di scari-co è posizionato troppo in alto. Pulire il filt...
Cosa fare se... 62 A display compare una segnalazione di guasto. Problema Causa e rimedio Dosatore vuoto Uno dei contenitori di detersivo per il dosaggio esterno èvuoto. Riempire il contenitore di detersivo. Info Igienizza: avviare il pro- gramma a min. 60 °C Con l'ultimo lavaggio è stato sele...
Cosa fare se... 63 Risultato di lavaggio non soddisfacente Problema Causa e rimedio Se si usa un detersivo liqui-do, la biancheria non risultapulita. I detersivi liquidi non contengono candeggianti. Non riesco-no quindi a eliminare macchie di frutta, caffè o tè. Usare un detersivo in polvere che c...
Cosa fare se... 64 Risultato di asciugatura non soddisfacente Problema Causa e rimedio Correggere il carico. Il ce-sto è vuoto o la biancheriaè troppo asciutta. Non si tratta di un guasto. Se con alcuni programmi il cariconon è sufficiente o addirittura non si carica il cestello, si ve-rifica un'int...
Cosa fare se... 65 Problema Causa e rimedio Si è formata della lanugine. Durante l'asciugatura, dai tessuti si stacca la lanugine for-matasi soprattutto durante l'uso dei capi o in parte duranteil lavaggio. La sollecitazione dei capi invece in essiccatoio èminore in base alla loro durata. La lanug...
Cosa fare se... 66 Problemi generali con la colonna bucato Problema Causa e rimedio La colonna bucato non ri-mane ferma durante la cen-trifuga. La colonna non è in bolla e i piedini non sono stati strettibene. Registrare la posizione della colonna bucato e bloccare ipiedini. Si sentono strani rumo...
Pulizia e manutenzione 70 Staccare la colonna bucato dalla rete elettrica. Eseguire le operazioni di pulizia e manutenzione dopo ogni uso dellacolonna bucato. Non utilizzare apparecchi per la pulizia a pressione né getti d'acquaper pulirla. Pulire l'involucro, il pannello comandi e le parti in...
Pulizia e manutenzione 71 Pulire il cassetto detersivi, i singoli scomparti e il disposi-tivo di aspirazione Dopo l'uso pulire accuratamente con acqua calda, eliminando resi-dui e incrostazioni di detersivo il cassetto, le singole vaschette e ildispositivo di aspirazione. In caso di fermo prolun...
Pulizia e manutenzione 72 1. Sfilare il dispositivo di aspirazione dalla vaschetta e lavarlo sotto acqua corrente calda. Pulire anche il tubicino sul quale il di-spositivo di aspirazione si innesta. 2. Reinfilare il dispositivo. Pulire il canale dell'ammorbidente con acqua calda e uno scovolino....
Pulizia e manutenzione 73 Pulire i filtri di afflusso acqua La lavatrice è dotata di filtri che proteggono le valvole di afflusso del-l'acqua. Questi filtri dovrebbero essere controllati all'incirca ogni 6mesi. Se si verificano frequenti interruzioni nella rete idrica, controllarlicon maggiore frequ...
Pulizia e manutenzione 74 Pulire il filtro impurità Un filtro impurità composto da due parti nell'area della guida aria rac-coglie lo sporco. Rimuovere e smontare il filtro impurità per pulirlo. Controllare e pulire il filtro impurità al più tardi quando compare lasegnalazione: Pulire circuito aria ...
Pulizia e manutenzione 75 Smontare il filtroimpurità Flusensieb reinigen Ein zweiteiliges Flusensieb im Luftfüh-rungsbereich fängt anfallende Flusenauf. Es wird zur Reinigung entnommenund demontiert. , Kontrollieren und reinigen Sie das Flusensieb spätestens bei derPrüfmeldung: Luftwege reinigen . T...
Pulizia e manutenzione 76 Montare il filtroimpurità Pulire inoltre l'area della guida aria se è presente dello sporco gros-solano e visibile, prima di rimontare il filtro. Vedi la pagina successi-va. Inserire la parte interna dentro la parte esterna del filtro. Ruotare in senso orario la parte i...
Pulizia e manutenzione 77 Pulire l'area della guida aria Controllare e pulire quest'area di tanto in tanto quando è presentemolto sporco. Pulizia rapida Luftführungsbereich reinigen Den Luftführungsbereich von Zeit zuZeit kontrollieren und reinigen, wenneine starke Verschmutzung vorliegt! Schnellrei...
Pulizia e manutenzione 78 Pulire anche l'area davanti alla ruota. Aspirare le impurità con l'aspirapolvere. Eliminare le impurità dal lato interno dello sportellino del filtro e dallaguarnizione. Non danneggiare la guarnizione in gomma. - Copertura nell'area di introduzione Rimuovere la copert...
Pulizia e manutenzione 79 Pulire la copertura. Pulire l'area guida aria davanti alla ruota della ventola (aprire lo spor-tellino del filtro impurità). Rimontaggio Applicare la copertura con precisione sul lato destro o sinistrodell'apertura. Premere la copertura verso il lato opposto, fino a...
Installazione 80 Per evitare danni dovuti al gelo, non installare mai la colonna bucatoin ambienti dove può gelare. Condizioni generali di funzionamento Questa colonna bucato è adatta al solo uso industriale e deve esserefatta funzionare in ambienti interni. - Temperatura ambiente: 0-40 °C - Umidi...
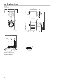
Installazione 81 Per facilitare la manutenzione Per facilitare successivi interventi di manutenzione da parte dell'assi-stenza tecnica, rispettare le misure/distanze minime indicate (com-presa la distanza dal muro con accesso). Osservare assolutamente le misure minime di sicurezza e la distanzadal...
Installazione 82 Posizionare la colonna bucato La colonna bucato deve essere installata solo dall'assistenza tec-nica Miele o da un rivenditore autorizzato da Miele. Osservare le in-dicazioni riportate sulla pianta di installazione. Questa colonna bucato può essere utilizzata solo per biancheria che...
Installazione 83 La colonna bucato montata pesa 209 kg. Per il trasporto dell'intera colonna bucato, garantirne la sicurezza di stabilità. A causa dell'altezza e del baricentro c'è pericolo che siribalti.
Installazione 84 Sicurezze per il trasporto Rimuovere la sicurezza per il trasporto Sganciare i ganci di arresto e ruotare la barra di trasporto sinistra di90° in senso orario. Estrarre la barra. Sganciare i ganci di arresto e ruotare la barra di trasporto destra di90° in senso antiorario.
Installazione 85 Estrarre la barra. Chiudere i fori con i tappi in dotazione. Conservare le barre di trasporto. Prima di trasportare eventualmen-te la macchina devono essere rimontate. Montaggio sicurezza di trasporto Per il montaggio della sicurezza di trasporto procedere in ordine in-verso.
Installazione 86 Registrazione I piedini e la superficie dove viene posizionata devono essere asciuttiper evitare che la colonna bucato scivoli durante la centrifugazione. Se non è posizionata correttamente possono aumentare i consumi diacqua e di energia e la lavatrice può spostarsi. La lavatrice v...
Installazione 87 Con una livella a bolla d'aria controllare che la lavatrice sia in bolla. Tenere fermo il piedino (1) con una pinza giratubi. Con la chiave ruo-tare il controdado (2) nuovamente contro il corpo macchina. I controdadi devono essere fissati all'involucro. Controllare anche ipiedin...
Installazione 88 Fissare tutti e quattro i piedini della colonna bucato con le griffe diancoraggio in dotazione. Rispettare le istruzioni di montaggio allegate. Applicare la parte superiore dell'essiccatoio Svitare le 2 viti per il pannello comandi della lavatrice. Staccare la spina di elett...
Installazione 95 Allacciamento idrico Ai sensi della normativa tedesca sull'acqua potabile, in Germaniadal 21.03.2021 al momento dell'avvio di tutte le apparecchiature al-lacciate all'acqua fredda o calda, occorre installare un dispositivoantiriflusso tra rubinetto e tubo di afflusso dell'acqua. Il ...
Installazione 96 Allacciamento ac-qua fredda Per l'allacciamento all'acqua fredda è necessario 1 rubinetto con rac-cordo ¾". Se manca l'allacciamento idrico, la lavatrice può essere allacciata allarete dell'acqua potabile solo da un installatore qualificato. Il tubo di afflusso per l'acqua fredd...
Installazione 97 Indicazioni per la Svizzera Ai sensi della norma SIA 385.351 / EN 1717 e in base alle raccoman-dazioni della SSIGA montare un dispositivo antiriflusso. Per un dispo-sitivo antiriflusso conforme alle norme rivolgersi a un idraulico specia-lizzato in sanitari. Disposizioni per l'Austr...
Installazione 98 Pompa di scarico(a seconda dellaversione macchi-na) Sulle macchine con pompa di scarico la liscivia viene scaricata conmax. 1 m di prevalenza. Il tubo di scarico deve essere posato senza curva affinché la lisciviapossa essere scaricata senza ostacoli. Per lo scarico della liscivia c...
Installazione 99 Convogliamento dell'aria in entrata e in uscita Aerazione e sfiato L'aria necessaria all'essiccatoio viene presa dall'ambiente in cui èposizionata la macchina.Garantire una sufficiente aerazione dell'ambiente, p.es. medianteaperture di aerazione non chiudibili nella parete esterna. ...
Installazione 101 Tabella I Componenti Lunghezza tubo diconfronto Tubo di sfiato (flessibile in alluminio)* / tubo (re-sistenza temperatura min. 80°C) – 1 m posato diritto o 1 m di tubo diritto– curva 45° (raggio di piegatura = 0,25 m)– curva 90° (raggio di piegatura = 0,25 m) 1,0 m0,6 m0,8 m L'uso ...
Installazione 102 A Tubo a muro, con inserto griglia = 1 x 3,8 m lunghezza tubo di confronto = 3,8 m B/D 2 curve, 90° = 2 x 0,8 m lunghezza tubo di confronto = 1,6 m C 0,5 m tubo = 0,5 x 1 m lunghezza tubo di confronto = 0,5 m Lunghezza totale del tubo = 5,9 m Risultato: la lunghezza totale del tubo...
Installazione 103 Utilizzare solo materiali resistenti al calore con una resistenza a tem-perature min. di 80 °C. Abluftführung mit gestecktenRohren Sie benötigen – den Anschlussstutzen (liegt bei). – Rohre und Übergangsstücke aus dem Handel. Es dürfen nur wärmebeständige Ma-terialien mit einer Temp...
Installazione 104 Per ogni essiccatoio deve essere installata una valvola di non ri- torno.In caso contrario, mediante acqua di condensa che rifluisce è possi-bile danneggiare l'essiccatoio e compromettere la sicurezza elettri-ca. Per l'installazione di 3-5 essiccatoi occorre ingrandire il diametr...
Installazione 105 Avviso su apparecchiature esterne Compare un avviso su hardware esterni. Confermare con il simbolo OK . Se è presente un Box Connector, collegarlo prima della messa in ser-vizio. Per eseguire tale operazione la lavatrice deve essere staccatadalla rete elettrica. Avviare solo succ...
Installazione 106 Accertarsi che lo stato del Box Connector nel livello gestore deve es-sere impostato se necessario su "on". Interfaccia WLAN/LAN La lavatrice è dotata di un'interfaccia WLAN/LAN per lo scambio deidati. L'interfaccia dati fornita per l'allacciamento LAN è conforme a SELV(bas...
Installazione 107 Accessori essicca-toi Box di comunica-zione Mediante il box di comunicazione opzionale è possibile allacciare allamacchina Miele Professional gli hardware esterni di Miele e di altri for-nitori. Hardware esterni sono p.es. sistema a gettoniera, impianto dicarico di punta, sensore a...
Livello gestore lavatrice 108 Aprire livello gestore Accendere la lavatrice. 11:02 Programmi Preferiti Gestore Toccare il tasto sensore Gestore . A display compare il menù Livello gestore . Accesso tramite codice Il livello gestore deve essere aperto con un codice. Il codice è 000 (i...
Livello gestore lavatrice 109 Comandi/display Lingua Le indicazioni a display possono essere impostate in diverse lingue.Entrando nel sottomenù Lingua è possibile cambiare la lingua gestoreimpostata. Per un programma in corso è possibile modificare la lingua del gestoretramite il tasto sensore . A...
Livello gestore lavatrice 110 Orologio Dopo aver selezionato il formato dell'ora, impostare l'ora. Formato dell'ora - 24 h - 12 h - Nessuno Impostare - È possibile impostare l'ora. Data Dopo aver scelto il formato della data è possibile impostare la data. Formato data - GG.MM.AAAA - AAAA.MM.GG - MM....
Livello gestore lavatrice 113 Selezione programmi Comandi Suggerimento: Eseguire dapprima tutte le impostazioni e le modifi- che necessarie sulla lavatrice prima di selezionare una delle seguentiopzioni.Selezionando "Lavanderia base" o "Lavanderia avanzata", al terminedel menù Livell...
Livello gestore lavatrice 114 Pacchetti pro-grammi La scelta del programma può essere ampliata attivando singoli pro-grammi dai pacchetti target. I programmi selezionati (in arancione) dai pacchetti sono visualizzati adisplay al momento della selezione. Programmi prefe-riti Dopo l'accensione, in alt...
Livello gestore lavatrice 115 Tecnica di processo Fase antipiega La fase antipiega serve a ridurre la formazione di pieghe nella bian-cheria al termine del programma. Al termine del programma il cestel-lo continua a ruotare per altri 30 minuti. È possibile aprire la lavatrice in qualsiasi momento. I...
Livello gestore lavatrice 116 Dosaggio automa-tico Il dosaggio automatico può essere attivato o disattivato. Il dosaggio automatico può essere selezionato tramite il Box Connec-tor o il modulo COM. Dosaggio Affinché le impostazioni vengano salvate nel menù Dosaggio, il BoxConnector deve essere attiv...
Livello gestore essiccatoio 119 È possibile impostare l'ora. Volume Il volume dei differenti segnali può essere modificato. Il volume può essere modificato in modo seguente: - Segnale acu-stico di fine Il suono di fine segnala la fine del programma di asciugatura. - Acustica tasti - Segnale acustico...
Livello gestore essiccatoio 122 * La durata massima del programma viene definita nella prima mes-sa in servizio. - Selez. esterna programmi Mediante un modulo di comunicazione è possibile selezionare ilprogramma da un terminale esterno. Pacchetti pro-grammi In questo modo si definiscono i programmi ...
Livello gestore essiccatoio 124 – Inversione rotaz. cesto : 0 – 500 secondi – Pausa : 100 – 300 secondi Disporre program-mi I programmi possono essere spostati all'interno dell'elenco program-mi e dell'elenco dei programmi preferiti. - Impostazione di serie: off - on Spostare program-mi/preferiti È ...
Livello gestore essiccatoio 125 Raffreddam. ag-giuntivo Se è attivato il raffreddamento avanzato, alla fine del programma vie-ne controllata la temperatura del cesto per ca. 1 minuto prima che lamacchina passi alla modalità di standby. Se la temperatura dovesseessere superiore a 55 °C, l'essiccatoio...
Livello gestore essiccatoio 128 Applicazioni esterne Sportell. esternosfiato L'allacciamento di hardware esterni avviene tramite il Box ConnectorMiele. Il posticipo del tempo tra il momento di azionamento della retroval-vola esterna e l'accensione del motore cesto/ventola viene regolato. Mentre lo s...
Livello gestore essiccatoio 130 La rete non è più configurata. Per riutilizzare la rete è necessario ef-fettuare una nuova connessione. – La WLAN si spegne– La connessione WLAN è stata ripristinata all'impostazione di serie Ora di rete Data e ora possono essere sincronizzate tramite rete. - off Data...
Livello gestore essiccatoio 132 Parametri apparecchio Informazioni legaliLicenze OpenSource Qui è possibile prendere visione delle informazioni. Diritti d'autore e li-cenze Per usare e gestire la macchina, Miele utilizza software propri o di terzinon soggetti ad una cosiddetta condizione di licenza ...
Connessione in rete 133 Istruzioni per il pairing Con i seguenti passaggi è possibile collegare in rete la lavatrice. Aprire livello gestore Sul display selezionare la voce menù Gestore . Selezionare la voce menù Accesso tramite codice . Inserire il codice gestore a 3 cifre. Configurare la con...
Connessione in rete 134 - L'SSID deve essere sempre visibile Requisiti di sistema per LAN - DHCP attivato - multicastDNS/Bonjour/IGMP Snooping attivato - Porte 443, 80, 53 e 5353 aperte - IP server DNS = IP Standard Gateway/router Intensità del segnale WLAN – Valori indicativi L'intensità del segnal...
Dati tecnici 135 Dati della PDW 909 Allacciamento elettrico Tensione di allacciamento v. targhetta dati Frequenza v. targhetta dati Potenza assorbita v. targhetta dati Assorbimento di corrente v. targhetta dati Protezione necessaria v. targhetta dati Potenza di riscaldamento v. targhetta dati Misure...
Dati tecnici 136 Afflusso aria Sezione libera consigliata di aria di alimentazione nell'ambiente:(corrisponde a 3 volte la sezione d'aria di sfiato di una macchina). 339 cm² All'ambiente di posizionamento deve essere convogliata aria in base alla quantità di aria di sfiato. Funzionamento a evacuazio...
Dati tecnici 137 Dichiarazione di conformità UE Miele dichiara che questa colonna bucato è conforme alla direttiva 2014/53/UE.Il testo completo della dichiarazione di conformità UE è disponibile ai seguenti indirizzi in-ternet: - In www.miele.it/it/p/ sotto "Prodotti", "Download" - I...
Tutela della privacy WLAN 138 Tutela della privacy e sicurezza dei dati Non appena si attiva la funzione di connessione in rete e si collegal'apparecchiatura a internet, i seguenti dati vengono inviati al Cloud diMiele: - Numero di fabbricazione della macchina - Modello della macchina e dotazione te...
Manuale di installazione Miele PDW 909 [EL DP DD]
Sommario
it - Istruzioni di installazione *INSTALLATION* 121 Spiegazione delle istruzioni di sicurezza e avvertenze sullamacchina Leggere le istruzioni d'uso Leggere le istruzioni p.es. le istruzioni di installazione Attenzione, superfici molto calde Attenzione, tensione fino a 1000 Volt Messa a terra Colleg...
it - Istruzioni di installazione *INSTALLATION* 122 A seconda delle caratteristiche del luogo di installazione si possonoverificare trasmissioni di suoni e vibrazioni. Suggerimento: In caso di specifiche esigenze di silenziosità del luogo di installazione della macchina, far eseguire una perizia in ...
it - Istruzioni di installazione *INSTALLATION* 123 Per sollevarla non afferrarla dallo sportello di carico. La colonna bucato deve essere posizionata su una superficie piana,orizzontale e stabile in grado di sorreggere i pesi indicati (v. cap. "Datitecnici"). Suggerimento: La superficie d...
it - Istruzioni di installazione *INSTALLATION* 124 Allacciamento elettrico L'allacciamento elettrico deve essere eseguito a regola d'arte soloda un elettricista professionista, nel rispetto delle norme previste edelle norme sull'installazione elettrica, su propria responsabilità. La colonna bucat...
it - Istruzioni di installazione *INSTALLATION* 125 Suggerimento: Si consiglia di allacciare preferibilmente la colonna bucato a spine, così da poter effettuare più facilmente verifiche di si-curezza elettrica (ad es. durante un intervento di manutenzione o dimessa in servizio). Se ai sensi delle ...
it - Istruzioni di installazione *INSTALLATION* 126 Allacciamentoall’acqua calda Per l'allacciamento all'acqua calda fino 70 °C valgono le stesse condi-zioni vigenti per l'allacciamento all'acqua fredda. Un tubo di allacciamento adatto con raccordo è in dotazione insiemealla macchina. L'allacciament...
it - Istruzioni di installazione *INSTALLATION* 128 Convogliamento dell'aria in entrata e in uscita Aerazione e sfiato L'aria necessaria all'essiccatoio viene presa dall'ambiente in cui èposizionata la macchina.Garantire una sufficiente aerazione dell'ambiente, p.es. medianteaperture di aerazione no...
it - Istruzioni di installazione *INSTALLATION* 130 Tabella I Componenti Lunghezza tubo diconfronto Tubo di sfiato (flessibile in alluminio)* / tubo (re-sistenza temperatura min. 80°C) – 1 m posato diritto o 1 m di tubo diritto– curva 45° (raggio di piegatura = 0,25 m)– curva 90° (raggio di piegatur...
it - Istruzioni di installazione *INSTALLATION* 131 A Tubo a muro, con inserto griglia = 1 x 3,8 m lunghezza tubo di confronto = 3,8 m B/D 2 curve, 90° = 2 x 0,8 m lunghezza tubo di confronto = 1,6 m C 0,5 m tubo = 0,5 x 1 m lunghezza tubo di confronto = 0,5 m Lunghezza totale del tubo = 5,9 m Risul...
it - Istruzioni di installazione *INSTALLATION* 132 Abluftführung mit gestecktenRohren Sie benötigen – den Anschlussstutzen (liegt bei). – Rohre und Übergangsstücke aus dem Handel. Es dürfen nur wärmebeständige Ma-terialien mit einer Temperaturbestän-digkeit von min. 80°C verwendetwerden. ^ Installi...
it - Istruzioni di installazione *INSTALLATION* 134 Opzioni/Accessori su richiesta Gli unici accessori che possono essere montati o utilizzati sonoquelli espressamente autorizzati da Miele.Se si montano o utilizzano altri accessori, il diritto alla garanzia e aprestazioni in garanzia per vizi e/o di...
it - Istruzioni di installazione *INSTALLATION* 135 Accessori essicca-toi Box di comunica-zione Mediante il box di comunicazione è possibile allacciare alla macchinaMiele Professional gli hardware esterni di Miele e di altri fornitori. Il box di comunicazione è alimentato con tensione di rete attrav...
it - Dati tecnici 141 Varianti di tensione e dati elettrici 3N AC 400 V EL Lavatrice Essiccatoio Tensione di allacciamento 3N AC 400 V 3N AC 400 V Frequenza 50 Hz 50/60 Hz Protezione necessaria (a cura del committente) Caratteristica di scatto interruttore LS 3 x 16 A Tipo B 3 × 16 A Tipo B Potenza ...
Guida rapida Miele PDW 909 [EL DP DD]
Sommario
it - Il Vostro contributo alla tutela dell'ambiente 119 Smaltimento dell'imballaggio L'imballaggio ha lo scopo di proteggere la merce da eventuali dannidi trasporto. I materiali utilizzati per l'imballaggio sono riciclabili, inquanto selezionati secondo criteri di rispetto dell'ambiente e di facilit...
it - Indicazioni per la sicurezza e avvertenze 120 Documentazione ampliata Questo documento contiene informazioni di base. Le istruzioni d'usocomplete e altri documenti relativi al vostro apparecchio sono dispo-nibili sulla pagina internet Miele: https://www.miele.it/it/professional/istruzioni-per-l...
it - Indicazioni per la sicurezza e avvertenze 122 Uso corretto La lavatrice deve essere usata solo per lavare capi e tessuti che il produttore ha dichiarato lavabili in acqua sull'etichetta. Qualsiasi altrouso può rivelarsi pericoloso. La casa produttrice non risponde di dan-ni causati da un uso ...
it - Indicazioni per la sicurezza e avvertenze 124 Evitare i seguenti errori Non utilizzare mai per nessun motivo nella colonna bucato detersi- vi contenenti solventi (ad es. benzina solvente). Questi prodotti po-trebbero danneggiare dei componenti della macchina e generare va-pori tossici. Perico...
it - Indicazioni per la sicurezza e avvertenze 125 Sicurezza tecnica Prima dell'installazione controllare che le macchine non presentino danni visibili esterni. Una colonna bucato danneggiata non può esse-re installata o messa in funzione. La sicurezza elettrica è garantita solo se le macchine s...
it - Indicazioni per la sicurezza e avvertenze 128 Impiego corretto Il carico massimo è di 10 kg di biancheria asciutta. Carichi parziali per singoli programmi sono indicati nel documento "Elenco program-mi". Prima della messa in servizio rimuovere le barre di trasporto della lavatrice (...
it - Indicazioni per la sicurezza e avvertenze 129 Non utilizzare né conservare nelle vicinanze della macchina benzi- na, petrolio o altri materiali facilmente infiammabili. Non utilizzare ilcoperchio della macchina come superficie di appoggio. Pericolo di incendio e di esplosione! Non appoggiar...
it - Indicazioni per la sicurezza e avvertenze 130 - sono stati trattati con prodotti infiammabili o presentano macchie di questi prodotti come acetone, alcol, benzina, petrolio, cherose-ne, smacchiatori, trementina, cera, sostanze che rimuovono la cerao altri prodotti chimici (ad es. su stracci, st...
it - Indicazioni per la sicurezza e avvertenze 131 Cloro e possibili danni ai componenti L'uso del cloro (candeggina) aumenta la probabilità di danneggiare alcuni componenti della macchina. L'impiego di prodotti contenenti cloro, come p.es. ipoclorito di so- dio e candeggianti al cloro in polver...
it - Indicazioni per la sicurezza e avvertenze 132 Accessori Gli unici accessori che possono essere montati o utilizzati sono quelli espressamente autorizzati da Miele. Se si montano o utilizzanoaltri accessori, il diritto alla garanzia e a prestazioni in garanzia per vizie/o difetti del prodotto ...
it - Uso 135 Pannello comandi ⑥ ① ② ③ ④ ⑤ ⑦ ⑧ ⑨ ⑩ ⑪ ⑫ a Essiccatoio, tasto sensore lingua Per selezionare la lingua dei comandi. Allafine del programma viene nuovamente vi-sualizzata la lingua del gestore. b Essiccatoio, tasto sensore indietro Consente di ritornare al livello precedentenel men...
it - Uso 136 Display touch e tasti sensore I tasti sensore , e Start/Stop nonché le rappresentazioni a di- splay reagiscono al contatto. A ogni contatto è associato un segnaleacustico. Il volume dell'acustica tasti può essere modificato o spento(v. cap. "Livello gestore"). Il pannello c...
it - Uso 137 Menù principale Dopo l'accensione dell'essiccatoio, a display compare il menù princi-pale. Dal menù principale si può accedere a tutti i sottomenù impor-tanti. Toccando il tasto sensore si torna in qualsiasi momento al menù principale. I valori impostati precedentemente non vengono me...
it - Uso 138 Per giungere al livello di selezione delle Opzioni , occorre dapprima selezionare un programma, p.es. Cotone resistente. 11:02 Timer Cotoneresistente 9,0/9,9 kg °C Giri/min 90 0:56 h 1300 Elenco Opzioni Dettagli 11:02 OK Prelavaggio Risciacquo plus Ammollo Opzioni Stop...
it - Uso 140 Menù a tendina Nel seguente esempio viene descritta l'indicazione per un program-ma di lavaggio in corso. Per giungere a questo livello, v. la descrizio-ne al capitolo "Avvio del programma - Fine programma". 11:02 2:27 Cotoneresistente Lavare e riscaldare Durata res. Stato ...
it - Uso 144 Lavare con il cas-setto detersivi Aggiunta di deter-sivo tramite il cas-setto detersivi Per i programmi standard, versare il detersivo in polvere per il lavag-gio principale nella vaschetta . Se lo si desidera, versare il deter- sivo per il prelavaggio nella vaschetta , l'ammorb...
it - Uso 147 Nei programmi preferiti la maggior parte delle impostazioni dei pro-grammi è già stabilita e non può essere modificata. Selezionare le im-postazioni delprogramma Scegliere la quanti-tà di carico Per consentire un dosaggio esterno in base al carico e uno svolgi-mento adeguato del program...
it - Uso 151 Se lavati con un altro programma, gli indumenti che non sono statitolti potrebbero restringersi o tingersi.Prelevare tutti i capi dal cesto. Controllare che nella guarnizione dello sportello non siano rimastiimpigliati dei corpi estranei. Spegnere la lavatrice con il tasto . Sugge...
it - Uso 152 Simboli di tratta-mento Asciugatura Temperatura normale/alta Temperatura ridotta* * Selezionare Delicato . non asciugare in macchina Stiro a mano e con stiratrice eccessivamente calda molto calda calda non stirare a mano/con mangano 2. Introdurre i capinell'essiccatoio Int...
it - Uso 156 Durata del pro-gramma/Previsionedurata residua La durata del programma dipende dalla quantità, dal tipo e dall'umidi-tà residua della biancheria. La durata visualizzata dei programmi, cheprevedono vari livelli di asciugatura, può variare o "saltare". L'elettro-nica dell'essiccat...
it - Cosa fare se... 157 Guida guasti Sblocco d'emergenza sportello in caso di interruzione della corrente Lo sportello non si apre. Attenzione! Il cesto in movimento costituisce un serio pericolo di ferirsi e con la lisci- via molto calda sussiste il pericolo di ustionarsi.Prima di impiegare la c...
it - Cosa fare se... 158 Assistenza tecnica In caso di guasti e anomalie rivolgersi all'assistenza tecnica Miele. Comunicare modello, n. di serie (SN) e n. mat. (Mat.-Nr.). Rilevare queste informazioni dallatarghetta dati. La targhetta dati è visibile a sportello di carico aperto in alto nell'anello...
it - Cosa fare se... 159 Non è possibile avviare nessun programma Problema Causa e rimedio Il display rimane scuro e iltasto sensore Start/Stop non è acceso o non lam-peggia. Alla colonna bucato non arriva corrente. Controllare se la colonna bucato è accesa. Controllare se la colonna bucato è co...
it - Cosa fare se... 160 Interruzione del programma e segnalazione di guasto Problema Causa e rimedio F - Guasto scarico idrico. Se la macchina non si riavvia,contattare l'assistenza tec-nica. Lo scarico dell'acqua è bloccato o intasato. Il tubo di scari-co è posizionato troppo in alto. Pulire i...
it - Cosa fare se... 161 A display compare una segnalazione di guasto. Problema Causa e rimedio Dosatore vuoto Uno dei contenitori di detersivo per il dosaggio esterno èvuoto. Riempire il contenitore di detersivo. Info Igienizza: avviare il pro- gramma a min. 60 °C Con l'ultimo lavaggio è stat...
it - Cosa fare se... 162 Risultato di lavaggio non soddisfacente Problema Causa e rimedio Se si usa un detersivo li-quido, la biancheria non ri-sulta pulita. I detersivi liquidi non contengono candeggianti. Non rie-scono quindi a eliminare macchie di frutta, caffè o tè. Usare un detersivo in polve...
it - Cosa fare se... 163 Risultato di asciugatura non soddisfacente Problema Causa e rimedio Correggere il carico. Il ce-sto è vuoto o la biancheriaè troppo asciutta. Non si tratta di un guasto. Se con alcuni programmi il cari-co non è sufficiente o addirittura non si carica il cestello, siverifica ...
it - Cosa fare se... 164 Problema Causa e rimedio Si è formata della lanugi-ne. Durante l'asciugatura, dai tessuti si stacca la lanugine for-matasi soprattutto durante l'uso dei capi o in parte duranteil lavaggio. La sollecitazione dei capi invece in essiccatoioè minore in base alla loro durata. L...
it - Cosa fare se... 165 Problemi generali con la colonna bucato Problema Causa e rimedio La colonna bucato non ri-mane ferma durante lacentrifuga. La colonna non è in bolla e i piedini non sono stati strettibene. Registrare la posizione della colonna bucato e bloccare ipiedini. Si sentono strani ...
it - Dati tecnici 171 Dichiarazione di conformità UE Miele dichiara che questa colonna bucato è conforme alla direttiva 2014/53/UE.Il testo completo della dichiarazione di conformità UE è disponibile ai seguenti indirizzi in-ternet: - In www.miele.it/it/p/ sotto "Prodotti", "Download"...
it - Tutela della privacy WLAN 172 Tutela della privacy e sicurezza dei dati Non appena si attiva la funzione di connessione in rete e si collegal'apparecchiatura a internet, i seguenti dati vengono inviati al Cloud diMiele: - Numero di fabbricazione della macchina - Modello della macchina e dotazio...
Miele Istruzioni
-
Miele APWM 063
Manuale di installazione
-
Miele APWM 020
Manuale d'uso
-
Miele APWM 020
Manuale di installazione
-
Miele SC
Manuale di installazione
-
Miele PR
Manuale di installazione
-
Miele FP 900
Manuale di installazione
-
Miele RP 900
Manuale di installazione
-
Miele APWM 019
Manuale d'uso
-
Miele APWM 019
Manuale di installazione
-
Miele PR 900
Manuale di installazione
-
Miele A 830/1
Manuale d'uso
-
Miele TT 86
Manuale d'uso
-
Miele RP 1150
Manuale di installazione
-
Miele APCL 001
Manuale di installazione
-
Miele E 473/2
Manuale d'uso
-
Miele FFK 01
Manuale di installazione
-
Miele FFK 01
Manuale
-
Miele DS 5
Manuale di installazione
-
Miele DS 10
Manuale di installazione
-
Miele DOS K 85 flex
Manuale di installazione