Miele PRI 418 [G LAM IB] - Istruzioni
Miele PRI 418 [G LAM IB] - Manuale d'uso, Manuale di installazione, Guida rapida in formato PDF online
Istruzioni:
Manuale d'uso Miele PRI 418 [G LAM IB]
Sommario
it - Pulizia e manutenzione delle conche in alluminio 28 I seguenti mangani sono dotati di serie di conche in alluminio: - HM 21-100 - HM 21-140 - HM 5316 - HM 29-175 - HM 38-175 - HM 38-205 - MM 50-175 - MM 50-205 - PM 1210 - PM 1214 - PM 1217 - PM 1318 - PM 1418 - PM 1421 - PRI 318 - PRI 418 - PRI...
it - Consigli di pulizia e inceratura 29 Una pulizia della conca si rende necessaria due o tre volte alla setti-mana in caso di funzionamento di 8 ore. Al termine di ogni pulizia occorre incerare la conca. Inoltre si consiglial'inceratura della conca dopo ca. otto ore di funzionamento. Si deveincera...
it - Consigli di pulizia e inceratura 30 Suggerimento: Le incrostazioni come i residui di amido possono es- sere eliminate facendo passare nel mangano un panno immerso inacqua tiepida. Disporre il panno per la pulizia sul lato sinistro del tavolo di introdu-zione in modo che le strisce di pulizia ...
it - Consigli di pulizia e inceratura 31 Accessori su ri-chiesta Per la pulizia e la manutenzione della conca sono necessari i seguentiaccessori: - panno per la pulizia Nomex-Nessel Miele con tasca (Temperatura di utilizzo ca. 80 °C, livello di temperatura di stiro “ ”, numero di giri del rullo pi...
it - Consigli di pulizia e inceratura 32 Il lato interno gommato della tasca del panno per inceratura nondeve essere rivolto verso la conca durante l'introduzione. Far passare il panno per inceratura uniformemente e dal lato sinistrodel tavolo di introduzione attraverso la conca finché fuoriesce c...
Manuale di installazione Miele PRI 418 [G LAM IB]
Sommario
Indice 2 Istruzioni di installazione ................................................................................................ 4 Requisiti per l'installazione ................................................................................................ 4 Condizioni per il funzionamento ......
Istruzioni di installazione 4 Requisiti per l'installazione Il mangano può essere posizionato e messo in servizio solo dall'assistenza tecnica Mieleoppure da personale debitamente formato presso i rivenditori autorizzati. L'installazione del mangano deve avvenire secondo le norme e regole vigenti....
Istruzioni di installazione 5 La tensione di allacciamento necessaria, l'assorbimento di potenza e l'indicazione per laprotezione esterna sono riportati sulla targhetta dati del mangano.Se l'allacciamento avviene a una tensione diversa da quella riportata sulla targhetta dati,possono verificarsi dan...
Istruzioni di installazione 6 Condotto del gas di scarico Il bocchettone di allacciamento per l'aspirazione del gas di scarico ( 120 mm) si trova sul retro del mangano accando al supporto laterale destro. Seguire le istruzioni di installazione. Accertarsi che nell'ambiente di posizionamento della...
Istruzioni di installazione 7 Lunghezza condotti aggiuntivi Pezzo sagomato Lunghezza condotti aggiuntivi PRI318/418/421 G (riscaldamento a gas) Curva 90° r = 2 d 1,5 m Curva 45° r = 2 d 0,85 m Curva 90° r = d 2,55 m Curva 45° r = d 1,4 m Curva condotto flessibile 90° r = 2 d 2,0 m Curva condotto fle...
Istruzioni di installazione 8 Lunghezze complessive condotti consentite Diametro minimo per condotti in lamiera Lunghezza max. consentita del condotto aria in uscita PRI318/418/421 G (riscaldamento a gas) 70 mm 80 mm 90 mm 100 mm 110 mm 120 mm 10 m 130 mm 14,5 m 150 mm 30 m 180 mm 75,5 m 200 mm Esig...
Istruzioni di installazione 9 Prima di terminare i lavori in caso di messa in servizio, manutenzione, modifica e ripara-zione occorre controllare la tenuta di tutti i componenti che conducono gas, dalla valvoladi chiusura manuale all'ugello del bruciatore. Tenere conto in particolare dei bocchettoni...
Istruzioni di installazione 11 Condotti gas di combustione I mangani con riscaldamento a gas sono apparecchi a gas con raccordo di evacuazione senza interruttore di tiraggio del tipo B 22 con ventola dietro il riscaldamento. - La mescolanza di aria e gas di combustione dei mangani con riscaldamento ...
Istruzioni di installazione 12 Sezioni del condotto di sfiato e del condotto di afflusso aria Modello Sezioni del bocchettone di sfiato PRI 318/418/421 Gas 113 cm² Valore triplo del gas di combustione PRI318 PRI418 PRI421 Flusso di massa dei gas di combu-stione* 160 g/s 101 g/s 122 g/s Temperatura* ...
Istruzioni di installazione 13 2. Cosa considerare alla prima messa in servizio Verificare se sono state rispettate le voci riportate al capitolo “1. Cosa considerare alla pri-ma messa in servizio”. La seguente sequenza deve essere rispettata alla prima messa inservizio oppure al momento della commu...
Istruzioni di installazione 14 Indicazioni di allacciamento e modifica Lavori di allacciamento e modifica possono essere eseguiti solo dall'assistenza tecnicaMiele o dal personale appositamente formato di un rivenditore specializzato. I mangani riscaldati a gas di Miele sono impostati di serie in ba...
Istruzioni di installazione 15 Controllare e impostare la valvola di regolazione del gas Rimuovere le viti a testa sui regolatori di pressione. Svitare le viti sul bocchettone di misurazione. Eseguire la misurazione. Dopo la misurazione stringere di nuovo le viti. Controllare la pressione ...
Istruzioni di installazione 16 Pressione di allacciamento e categoria I mangani riscaldati a gas sono consentiti per i paesi di destinazione, le pressioni di allac-ciamento e le categorie seguenti: Paese di destina- zione Categoria Pressione allacciamento (gas naturale) DIN EN 437 Pressione di allac...
PRI318 G (riscaldamento a gas) 17 Dimensioni 300 60 300 60 1750 1110 >350 >350 2469 1377 BWR>300 780 160 437 850 919 71 1240 300 0–20 Misure in mm BWR Kit modulo ripresa biancheriaDotazione opzionale per poter riprendere la biancheria dal lato anteriore al terminedella fase di stiro.
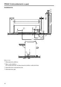
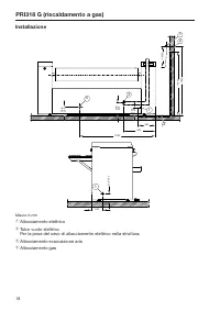
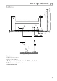
PRI318 G (riscaldamento a gas) 18 Installazione 1 240 133– 153 360 > 5000 ~1415 1600 2 3 2 133–153 623 1590 215– 235 185– 205 4 1 1 Misure in mm a Allacciamento elettrico b Tubo vuoto elettricoPer la posa del cavo di allacciamento elettrico nella struttura. c Allacciamento evacuazione aria d Alla...
PRI318 G (riscaldamento a gas) 19 Posizionamento A A 355 159 1768 5 4 159 464 355 350 5 5 5 Ø 10 ~70 A-A 5 3 2 Misure in mm b Tubo vuoto elettricoPer la posa del cavo di allacciamento elettrico nella struttura. c Allacciamento evacuazione aria d Allacciamento gas e Foro/punto di fissaggio
PRI318 G (riscaldamento a gas) 20 Dati tecnici Varianti di tensione/dati elettrici 3NAC 380–415 V, 50–60 Hz Tensione di allacciamento 3NAC 380-415 V Frequenza 50–60 Hz Potenza assorbita 1,0 kW Protezione necessaria (a cura del committente) 3 × 16 A Sezione minima cavo di allacciamento 5 × 1,5 mm² Ra...
Guida rapida Miele PRI 418 [G LAM IB]
Sommario
it - Indicazioni per la sicurezza e avvertenze 91 Documentazione ampliata Questo documento contiene informazioni di base. Le istruzioni d'uso complete e altri do-cumenti relativi al vostro apparecchio sono disponibili sulla pagina internet Miele: https://www.miele.it/it/professional/istruzioni-per-l...
it - Indicazioni per la sicurezza e avvertenze 92 - Non eseguire alcuna azione che potrebbe generare scintille: non utilizzare più interruttore luce, interruttore apparecchio e campanello. Non sfilare la spina dalla presa elettrica.Non usare telefoni fissi o cellulari. - Aprire subito tutte le fines...
it - Indicazioni per la sicurezza e avvertenze 93 Sorvegliare i bambini che si trovano nelle immediate vicinanze del mangano. Non per- mettere loro di giocare con la macchina. Se l'apparecchio è caldo e la conca è accostata, si rischia di ustionarsi toccando il bor- do della conca, dalla parte d...
it - Descrizione apparecchio 95 Struttura apparecchio 1 2 3 4 5 6 7 8 5 9 10 11 a Pannello comandi (display touch) b Listello salvadita c Rullo con telo di stiratura d Tavolo di ripresa e Interruttore arresto di emergenza(frontalmente sul supporto laterale sinistroe dietro sul supporto laterale dest...
it - Descrizione apparecchio 96 Display touch I tasti sul display touch possono essere selezionati mediante leggera pressione. Sotto iltasto selezionato compare un trattino. Indicazione a display nella modalità di selezione per la temperatura del mangano a Tasto Accende e/...
it - Descrizione apparecchio 98 Simboli a display 1 Azionare il listello salvadita 2 L'attuale temperatura di stiro è inferiorealla temperatura impostata. La temperatu-ra di stiro aumenta. 3 Spie pulizia e inceratura (v. cap. “Pulizia emanutenzione”). 4 L'attuale temperatura di stiro è super...
it - Descrizione apparecchio 99 Listello salvadita Il listello salvadita è un dispositivo di sicurezza che deve essere controllato tutti i giorni re-lativamente alla sua efficacia prima della messa in servizio. Pericolo di ferirsi a causa dell'assenza della funzione salvadita. Una funzione salvadi...
it - Descrizione apparecchio 100 Interruttore arresto di emergenza L'interruttore arresto di emergenza serve a mettere in sicurezza l'apparecchio in caso dipericolo o per scongiurare un pericolo. Il mangano è dotato di 2 interruttori di arresto di emergenza: 1 sul lato anteriore del sup-porto latera...
it - Uso del mangano 101 Rendere la macchina pronta per il funzionamento Accendere l'interruttore principale per l'alimentazione della corrente. Premere il tasto , per accendere il mangano. Il simbolo con la spia rossa lampeggia. Premere leggermente sul lato inferiore del listello salvadit...
it - Uso del mangano 102 Tasti di selezione della temperatura La temperatura della conca può essere impostata sia tramite i tasti di selezione della tem-peratura ( / / ) sia tramite i tasti e – . Se si imposta la temperatura di stiro da un valore più alto a un valore più basso, accertarsi...
it - Uso del mangano 103 Tasti di selezione velocità rullo Il numero di giri del rullo può essere impostato tramite i tasti di selezione di giri ( / / ) o i tasti / – . Impostare la velocità di stiro Premere il tasto . per accedere alla modalità di selezione per la velocità del rullo....
it - Uso del mangano 104 Uscire dall'impostazione preferita Premere brevemente il tasto per uscire dall'impostazione preferita. Vengono visualizzati la temperatura di stiro e il numero di giri del rullo impostati preceden-temente. Introdurre la biancheria Premere il tasto per avviare il proc...
it - Uso del mangano 106 Comando a pedale “FlexControl” Con il comando a pedale, posizionabile individualmente, è possibile fermare il rullo perbreve tempo. In questo modo si evitano facilmente errori di introduzione. Uso del comando a pedale Durante lo stiro premere il comando a pedale per fermar...
it - Installazione e allacciamenti 107 Requisiti per l'installazione Il mangano può essere posizionato e messo in servizio solo dall'assistenza tecnica Mieleoppure da personale debitamente formato presso i rivenditori autorizzati. L'installazione del mangano deve avvenire secondo le norme e regole...
it - Installazione e allacciamenti 108 Per il trasporto del mangano garantirne la sicurezza di stabilità. Il mangano non può es-sere trasportato senza telaio in legno.Per un nuovo trasporto (p.es. in caso di trasloco) sollevare il mangano sul telaio in legnoe fissarlo. Fissare la macchina Per questo...
it - Installazione e allacciamenti 109 La tensione di allacciamento necessaria, l'assorbimento di potenza e l'indicazione per laprotezione esterna sono riportati sulla targhetta dati del mangano.Se l'allacciamento avviene a una tensione diversa da quella riportata sulla targhetta dati,possono verifi...
it - Installazione e allacciamenti 110 La parte terminale del tubo di un condotto di sfiato verso l'esterno deve essere protettodagli agenti atmosferici grazie p.es. a una curva a 90° rivolta verso il basso. Allacciamento al gas (solo per mangani con riscaldamento a gas) L'allacciamento gas deve ess...
it - Installazione e allacciamenti 111 Registrazione Per garantire un funzionamento ineccepibile ed efficace in termini energetici, il manganodeve essere posizionato in modo uniforme e orizzontale su tutti e quattro i piedini. Dopo averlo posizionato, registrare il mangano longitudinalmente e tras...
Miele Istruzioni
-
Miele APWM 063
Manuale di installazione
-
Miele APWM 020
Manuale d'uso
-
Miele APWM 020
Manuale di installazione
-
Miele SC
Manuale di installazione
-
Miele PR
Manuale di installazione
-
Miele FP 900
Manuale di installazione
-
Miele RP 900
Manuale di installazione
-
Miele APWM 019
Manuale d'uso
-
Miele APWM 019
Manuale di installazione
-
Miele PR 900
Manuale di installazione
-
Miele A 830/1
Manuale d'uso
-
Miele TT 86
Manuale d'uso
-
Miele RP 1150
Manuale di installazione
-
Miele APCL 001
Manuale di installazione
-
Miele E 473/2
Manuale d'uso
-
Miele FFK 01
Manuale di installazione
-
Miele FFK 01
Manuale
-
Miele DS 5
Manuale di installazione
-
Miele DS 10
Manuale di installazione
-
Miele DOS K 85 flex
Manuale di installazione