Pagina 2 - Indice; Indicazioni sulla sicurezza e avvertenze
Indice 2 Indicazioni sulla sicurezza e avvertenze .................................................................. 4 Sostenibilità e tutela dell'ambiente .......................................................................... 13 Presentazione del prodotto ..........................................
Pagina 3 - Consigli per il risparmio energetico
Indice 3 Consigli per il risparmio energetico .......................................................................... 26 Pulizia e manutenzione ................................................................................................ 27 Pulire l'involucro .....................................
Pagina 4 - Uso corretto; Questa cappa aspirante è destinata all'impiego in ambito domesti-
Indicazioni sulla sicurezza e avvertenze 4 Questa cappa aspirante è conforme alle vigenti norme di sicurezza.Un uso improprio può comunque causare danni a persone e/o co-se.Leggere attentamente le istruzioni d'uso e di montaggio prima dimettere in funzione la cappa. Contiene informazioni importanti ...
Pagina 5 - Bambini
Indicazioni sulla sicurezza e avvertenze 5 Le persone che per le loro capacità fisiche, sensoriali o psichiche o per la loro inesperienza o non conoscenza non siano in grado di utiliz-zare in sicurezza la cappa aspirante, non devono farne uso senza lasorveglianza e la guida di una persona responsa...
Pagina 6 - Sicurezza tecnica; È possibile il funzionamento temporaneo o permanente su un si-
Indicazioni sulla sicurezza e avvertenze 6 Sicurezza tecnica Riparazioni o lavori di installazione e di manutenzione non corretta- mente eseguiti possono mettere seriamente in pericolo l'utente. La-vori di installazione e manutenzione nonché riparazioni possono es-sere eseguiti solo da personale t...
Pagina 8 - Pericolo di intossicazione a causa dei gas combustibili.
Indicazioni sulla sicurezza e avvertenze 8 Contemporaneo funzionamento con un fuoco alimentato da aria ambiente Pericolo di intossicazione a causa dei gas combustibili. Se la cappa viene messa in funzione sul luogo di installazione ed èattivo un fuoco (fiamma) alimentato con aria ambiente, è neces...
Pagina 10 - Impiego corretto
Indicazioni sulla sicurezza e avvertenze 10 Impiego corretto Pericolo di incendio a causa di fiamme libere. Non lavorare mai con fiamme libere sotto la cappa aspirante. È quindivietato ad es. cuocere flambé e grigliare su fiamma libera. La cappaaspirante accesa aspira le fiamme nel filtro. Il gras...
Pagina 11 - Installazione corretta
Indicazioni sulla sicurezza e avvertenze 11 Depositi di grasso e sporco compromettono la funzionalità della cappa aspirante.Non utilizzare mai la cappa senza i filtri antigrasso, al fine di garantirela depurazione delle fumane. Se la pulizia non avviene osservando le indicazioni riportate nelle ...
Pagina 12 - L'aria di scarico non deve essere convogliata in un camino già in; Pulizia e manutenzione; Il vapore di un apparecchio di pulizia a vapore può giungere alle; Accessori e pezzi di ricambio
Indicazioni sulla sicurezza e avvertenze 12 L'aria di scarico non deve essere convogliata in un camino già in funzione per fumi o gas combusti, né in un canale che serve per laventilazione di ambienti dove si trovino dei fuochi. Se l'aria di scarico deve essere convogliata in un camino fuori uso...
Pagina 13 - Sostenibilità e tutela dell'ambiente; Smaltimento dell'imballaggio
Sostenibilità e tutela dell'ambiente 13 Smaltimento dell'imballaggio L'imballaggio è pratico e protegge l'ap-parecchio da eventuali danni di traspor-to. I materiali utilizzati per l'imballaggiosono riciclabili, in quanto selezionati se-condo criteri di rispetto dell’ambiente edi facilità di smaltime...
Pagina 15 - Componenti; Filtro antigrasso
Presentazione del prodotto 15 a CaminoAccessori su richiestaSolo con funzionamento a evacua-zione b Filtri antiodoreFiltro antiodore riutilizzabile o rigene-rabile una voltaAccessori su richiesta per il funziona-mento a ricircolo c Comandi d Schermo deviafumane e Filtro antigrasso f Vaschetta di rac...
Pagina 16 - Funzioni
Presentazione del prodotto 16 Funzioni Funzionamento a evacuazione aria L'aria aspirata viene purificata attraver-so i filtri antigrasso e convogliataall'esterno. Funzionamento a ricircolo (con filtro antiodore disponibile comeaccessorio su richiesta, v. “Dati tecnici”) L'aria aspirata viene purific...
Pagina 17 - - Se è impostato il livello Booster della
Presentazione del prodotto 17 Miele@home È possibile collegare la cappa aspirantealla propria rete WLAN e azionarla tra-mite la app Miele dal proprio dispositivomobile. Se anche il piano cottura Miele è colle-gato alla rete WLAN, la funzio-ne Con@ctivity è attivata automatica-mente. Con@ctivity Con ...
Pagina 18 - Primo avvio; Connettere il Miele@home; Disponibilità Miele@home
Primo avvio 18 Selezionare il funzionamento aevacuazione o ricircolo La cappa aspirante è indicata sia per ilfunzionamento a evacuazione che a ri-circolo. La potenza dell'aspiratore siadegua alla modalità selezionata. Diserie è impostato il funzionamento a ri-circolo. Per il funzionamento a evacua-z...
Pagina 19 - App Miele
Primo avvio 19 App Miele È possibile scaricare la App Miele gra-tuitamente da Apple App Store ® o da Google Play Store™. Collegare tramite app È possibile creare la connessione di retecon la app Miele. Installare l'app Miele sul proprio ter-minale mobile. Per la registrazione occorrono: 1. la pass...
Pagina 20 - Connettere la Con@ctivity
Primo avvio 20 Disconnettersi dal WLAN (tornare alleimpostazioni di serie) Per ristabilire una nuova connessioneWLAN serve interrompere la connessio-ne WLAN esistente. Tenere premuto il tasto 1 e poi, con- temporaneamente, premere il tastodell'illuminazione per ca. 2 secon- di. Con una connessi...
Pagina 21 - Connettere il telecomando; Disconnettere il telecomando
Primo avvio 21 Se la connessione non è possibile, lam-peggiano 2 e 3 , oppure il procedimento viene interrotto dalla cappa aspirante. Staccare il collegamento sulla cappaaspirante (v. paragrafo “DisconnettereWLAN”) e sul piano cottura. Ripetere il procedimento. Mentre è attivo il collegamento di...
Pagina 22 - Cuocere con Con@ctivity; La luce del piano cottura si accende.
Uso (automatico) 22 Cuocere con Con@ctivity su unpiano cottura elettrico Accendere una zona cottura impo-stando un qualsiasi livello. La luce del piano cottura si accende. Dopo alcuni secondi si accende l'aspira-tore, dapprima brevemente al livello 2 , poi al livello 1 . Durante il procedimento di...
Pagina 23 - prima
Uso (automatico) 23 Uscire temporaneamente dalfunzionamento automatico È possibile uscire temporaneamente dalfunzionamento automatico: impostare manualmente un altro livel-lo di aspirazione; oppure spegnere la cappa aspirante manual-mente; oppure attivare la funzione supplementa-re dalla ap...
Pagina 24 - Accendere l'aspiratore; Premere il tasto On/Off; Impostare il livello di potenza; Ritornare al livello Booster; Spegnere l'aspiratore
Uso (manuale) 24 Cuocere senza la funzioneCon@ctivity (funzionamentomanuale) È possibile azionare manualmente lacappa aspirante alle seguenti condizioni: - la funzione Con@ctivity non è attiva. - La funzione Con@ctivity è stata di- sattivata temporaneamente (v. “Uso(funzionamento automatico)”, par.“...
Pagina 25 - Modifica delle impostazioni; Spegnimento di sicurezza
Modifica delle impostazioni 25 Attivazione/disattivazione delPower Management Tenere tuttavia presente che questopotrebbe comportare maggiori consu-mi energetici. Tenere premuto il tasto 1 e poi, con- temporaneamente, premere il tastoOn/Off per ca. 3 secondi. 1 , 2 , 3 e B lampeggiano due volte...
Pagina 27 - Staccare la cappa aspirante dalla; Filtri antigrasso; Aprire lo schermo deviafumane
Pulizia e manutenzione 27 Staccare la cappa aspirante dalla rete elettrica prima di qualsiasi inter-vento di manutenzione e pulizia (v.cap. “Istruzioni per la sicurezza e av-vertenze”). Pulire l'involucro Pulire le superfici e i comandi con unaspugna inumidita di acqua calda conun po' di detersi...
Pagina 28 - Estrarre il filtro antigrasso; La caduta del filtro potrebbe cau-; Pulire la vaschetta raccogligocce; - Detergenti anticalcare
Pulizia e manutenzione 28 Estrarre il filtro antigrasso La caduta del filtro potrebbe cau- sare danni al filtro e al piano cottura.Durante l'operazione, tenere il filtrosaldamente. Aprire il bocco del filtro antigrasso an-teriore, spingere il filtro antigrassoleggermente verso l'alto ed estrarlo...
Pagina 29 - Inserire il filtro antigrasso; Inserire i filtri antigrasso.; Chiudere lo schermo deviafumane
Pulizia e manutenzione 29 Indicazioni per il lavaggio in lavastovi-glie I filtri antigrasso possono diventare inu-tilizzabili per effetto delle temperatureelevate, p.es. per deformazione. Selezio-nare un programma che non superi latemperatura consigliata. Attenersi anche alle indicazioni riportatene...
Pagina 30 - Filtro antiodore; Smaltire i filtri antiodore
Pulizia e manutenzione 30 Filtro antiodore Intervallo di sostituzione filtro a carbo-ni attivi Sostituire il filtro a carboni attivi ogniqualvolta gli odori non vengono suffi-cientemente assorbiti. Consigliamo di sostituire il filtro a carbo-ni attivi al più tardi dopo 6 mesi. Se per la cappa aspira...
Pagina 31 - Installazione; Prima dell'installazione; per una conduttura di uscita aria
Installazione 31 Prima dell'installazione Prima dell'installazione, leggere tutte le informazioni contenute inquesto capitolo e nel capitolo “Istru-zioni per la sicurezza e avvertenze”. Rimuovere la pellicola protettiva Le singole parti dell'involucro sono pro-tette da una pellicola per evitare da...
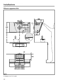
Pagina 33 - Distanza tra piano cottura e cappa aspirante (S)
Installazione 33 a Evacuazione dell’aria verso l’alto o verso il retro b Passaggio se l'allacciamento alla rete elettrica non avviene tramite spina, macon allacciamento fisso c Passaggio condotto di sfiato 200 mm, in modo che il condotto di sfiato nella parete sia mobile d Fuoriuscita dell’aria ...
Pagina 34 - Consigli per l'installazione; - Per la distanza della cappa dal piano
Installazione 34 Consigli per l'installazione - Per la distanza della cappa dal piano cottura, tenere presente anche l'al-tezza dell'utente. La cappa dovrebbeessere posizionata in modo ottimaleper essere usata senza difficoltà epermettere di cucinare comodamen-te. - Tenere tuttavia presente che più ...
Pagina 35 - Conduttura scarico dell'aria; Camino di sfiato
Installazione 35 Conduttura scarico dell'aria Se la cappa deve funzionare in presenza di fuochi alimentati con ariaambiente, a determinate condizionipuò sussistere il pericolo di intossica-zione!Leggere attentamente il capitolo“Istruzioni per la sicurezza e avver-tenze”.In caso di dubbi chiedere c...
Pagina 36 - Retrovalvola
Installazione 36 Retrovalvola Utilizzare una retrovalvola nel sistemadi sfiato. Una retrovalvola garantisce che concappa aspirante spenta non si verifichiuno scambio di aria tra ambiente e ariaesterna. Se l'aria di sfiato viene convogliataall'aperto, si consiglia di installare un tu-bo a muro oppu...
Pagina 37 - Silenziatore
Installazione 37 Silenziatore Nel condotto di sfiato è possibile mon-tare un silenziatore (accessorio su ri-chiesta) per ammortizzare ulteriormentei suoni. Con il funzionamento a evacuazione ilsilenziatore attutisce i rumori dell'aspi-ratore verso l'esterno e anche i rumoriche dall'esterno penetrano...
Pagina 38 - Allacciamento elettrico; Pericolo di incendio in caso di
Installazione 38 Allacciamento elettrico La cappa aspirante viene fornita prontaper essere allacciata alla rete elettricatramite cavo e presa di sicurezza (Schu-ko). Se la presa non fosse accessibile o sefosse previsto un allacciamento fisso,assicurarsi che al momento dell'installa-zione sia present...
Pagina 39 - Assistenza tecnica; Contatti in caso di guasto
Assistenza tecnica 39 Sotto www.miele.it/c/service-10.htmsi possono leggere le informazioni rela-tive alla risoluzione autonoma di guastie ai pezzi di ricambio Miele. Contatti in caso di guasto In caso di guasti che non si è in grado dirisolvere da soli, contattare il negoziospecializzato Miele o il...
Pagina 40 - Dati tecnici; Modulo WLAN; Accessori su richiesta per il funzionamento a ricircolo
Dati tecnici 40 Motore aspiratore* 200 W Illuminazione piano cottura 3,2 W Potenza massima assorbita* 203,2 W Tensione di rete, frequenza AC 230 V, 50 Hz Protezione 10 A Lunghezza del cavo di alimentazione elettrica 1,3 m Temperatura della luce 3.500 K Peso DAH 2660 15,5 kg DAH 2860 17,5 kg DAH 2960...
Pagina 41 - Indicazioni per test comparativi
Dati tecnici 41 Indicazioni per test comparativi La rilevazione della classe di efficienza energetica deve avvenire con il funziona-mento a evacuazione. Di serie è impostato il funzionamento a ricircolo sulla cappaaspirante. La commutazione sul funzionamento a evacuazione avviene disattivandoil cont...
Pagina 42 - Scheda per cappe aspiranti
Dati tecnici 42 Scheda per cappe aspiranti ai sensi del regolamento delegato (UE) n. 65/2014 e del regolamento (UE) n.66/2014 MIELE Identificativo del modello DAH 2660 Escala Consumo annuo di energia (AEC hood ) 72,2 kWh/anno Classe di efficienza energetica B Indice di efficienza energetica (EEI hoo...