Pagina 2 - Indice; Lingua
Indice 2 Indicazioni per la sicurezza e avvertenze ................................................................. 5 Il Vostro contributo alla tutela dell'ambiente .......................................................... 15 Panoramica ................................................................
Pagina 4 - Pietanze test secondo EN 60705 (modalità cottura microonde
Indice 4 Arrostire .......................................................................................................................... 64 Consigli per la cottura .................................................................................................... 64 Indicazioni relative alle t...
Pagina 5 - Indicazioni per la sicurezza e avvertenze; Uso corretto
Indicazioni per la sicurezza e avvertenze 5 Il forno con le microonde verrà denominato per semplicità forno. Il forno è conforme alle vigenti norme di sicurezza. Un uso impro-prio può comunque causare danni a persone e/o cose.Leggere attentamente le istruzioni d'uso e di montaggio prima dimettere ...
Pagina 6 - Bambini
Indicazioni per la sicurezza e avvertenze 6 Nel vano cottura sono integrate delle lampadine speciali per soddi- sfare specifiche esigenze (p.es. temperatura, umidità, resistenza chi- mica e all'usura, vibrazione). Impiegare le lampadine speciali solo per l’uso previsto. Non sono adatte per illumin...
Pagina 7 - Sicurezza tecnica; È possibile il funzionamento temporaneo o permanente su un si-
Indicazioni per la sicurezza e avvertenze 7 Sicurezza tecnica Riparazioni o lavori di installazione e di manutenzione non corretta- mente eseguiti possono mettere seriamente in pericolo l'utente. La-vori di installazione e manutenzione nonché riparazioni possono es-sere eseguiti solo da personale ...
Pagina 8 - stenza tecnica autorizzata Miele.
Indicazioni per la sicurezza e avvertenze 8 Non utilizzare questo elettrodomestico in luoghi non stazionari (p.es. sulle navi). Pericolo di ferirsi a causa di scossa elettrica. L'eventuale contatto con parti sotto tensione o la modifica delle strutture elettriche omeccaniche possono causare anom...
Pagina 9 - Impiego corretto; Tenere conto che le durate nel corso della cottura, del riscalda-
Indicazioni per la sicurezza e avvertenze 9 Impiego corretto Pericolo di ferimento a causa delle superfici calde. Il forno diventa molto caldo quando è in funzione. È possibile bruciarsi a contatto conle resistenze, il vano cottura, gli alimenti e gli accessori.Si consiglia quindi di usare presine...
Pagina 11 - mento dei liquidi, con la modalità Microonde; Accertarsi sempre che la temperatura; Dopo averla riscaldata, mescolare oppure agitare
Indicazioni per la sicurezza e avvertenze 11 Durante la cottura e soprattutto nel corso del successivo riscalda- mento dei liquidi, con la modalità Microonde è possibile che la temperatura di ebollizione venga raggiunta ma che non appaiano le ti-piche bollicine di vapore. Il liquido non bolle un...
Pagina 12 - I termometri al mercurio o contenenti liquido non sono adatti per
Indicazioni per la sicurezza e avvertenze 12 I termometri al mercurio o contenenti liquido non sono adatti per le alte temperature e si rompono facilmente.Interrompere il funzionamento per controllare la temperatura degli ali-menti. Per la misurazione della temperatura degli alimenti utilizzareuno...
Pagina 13 - carico errato in modalità Microonde; sempre; la leccarda in vetro in modalità Microonde; Per superfici in acciaio inox:; ciaio inossidabile come lavagna per magneti.; Pulizia e manutenzione
Indicazioni per la sicurezza e avvertenze 13 Le confezioni per tenere in caldo le pietanze sono composte tra l'altro di una sottile pellicola in alluminio che riflette le microonde. La carta cheavvolge la pellicola in alluminio può riscaldarsi a tal punto da bruciarsi.Con le modalità combinate all...
Pagina 14 - Accessori
Indicazioni per la sicurezza e avvertenze 14 Il vetro delle lastre dello sportello può graffiarsi. Per pulire il vetro dello sportello non utilizzare detergenti abrasivi, spugne ruvide ospazzole o raschietti affilati. Pulire subito e a fondo le pareti in acciaio inossidabile del vano cot- tura s...
Pagina 15 - Il Vostro contributo alla tutela dell'ambiente; Smaltimento dell'imballaggio
Il Vostro contributo alla tutela dell'ambiente 15 Smaltimento dell'imballaggio L'imballaggio è pratico e protegge l'ap-parecchio da eventuali danni di traspor-to. I materiali utilizzati per l'imballaggiosono riciclabili, in quanto selezionati se-condo criteri di rispetto dell’ambiente edi facilità d...
Pagina 16 - Panoramica; Forno; Comandi
Panoramica 16 Forno a Comandi b Resistenza grill c 3 ripiani per introdurre la leccarda in vetro e la griglia d Apertura aspirazione ventola con resistenza anulare posteriore e Telaio frontale con targhetta dati f Sportello
Pagina 17 - OK
Comandi 17 a Tasto On/Off nell'incavo Per accendere e spegnere il forno b Interfaccia ottica(solo per l'assistenza tecnica autoriz-zata Miele) c Tasto sensore Per comandare il forno tramite di-spositivi terminali mobili d Tasto sensore Per avviare la funzione MW-Quick(microonde) e DisplayVisu...
Pagina 18 - è situato in un incavo; Display; appare il menù principale con; Tasti sensore; Tasti sensore sopra il display
Comandi 18 Tasto On/Off Il tasto On/Off è situato in un incavo e reagisce a contatto.Con questo tasto si accende e si spegneil forno. Display A display vengono visualizzate l'ora o di-verse informazioni relative alle modalità,alle temperature, alle durate, ai pro-grammi automatici e alle impostazi...
Pagina 19 - Tasti sensore sotto il display; e toccare il tasto sensore. Infine si ac-
Comandi 19 Tasti sensore sotto il display Tasto sensore Funzione Se si desidera gestire un forno tramite un dispositivo terminalemobile, occorre avere il sistema Miele@home, accendere l'impo-stazione Comando remoto e toccare il tasto sensore. Infine si ac- cende il tasto sensore e la funzione Mobi...
Pagina 20 - Tasto sensore Funzione; Simboli; A display compaiono i seguenti simboli:; Simbolo
Comandi 20 Tasto sensore Funzione /W Durante la fase di riscaldamento e il processo di cottura, conquesto tasto sensore è possibile modificare la temperatura o lapotenza delle microonde. Nelle modalità senza microonde è possibile modificare la tempe-ratura. Nelle modalità con le microonde è possib...
Pagina 21 - Attività; Selezionare la voce menù; Selezionare modalità o funzione
Attività 21 Si gestisce il forno tramite l'area di navi-gazione con i tasti freccia e e l'area in mezzo . Non appena compare un valore, un'indi-cazione o un'impostazione che si puòconfermare, il tasto sensore OK si ac- cende di arancione. Selezionare la voce menù Toccare il tasto...
Pagina 22 - Cambiare modalità; Immettere cifre; Attivare MobileStart
Attività 22 Cambiare modalità Nel corso del processo di cottura è pos-sibile passare a un'altra modalità.Il tasto sensore della modalità sinora se-lezionata si accende di arancione. Toccare il tasto sensore della nuovamodalità o funzione. A display compaiono la modalità modifi-cata e i rispettivi ...
Pagina 23 - Dotazione; Targhetta dati; - Ricettario con ricette per i programmi; Accessori di serie e su richiesta; Leccarda in vetro; Utilizzare; la leccarda in vetro
Dotazione 23 I modelli descritti in queste istruzionid'uso e di montaggio sono riportati sulretro di copertina. Targhetta dati La targhetta dati è visibile sul telaiofrontale a sportello aperto.Sulla targhetta sono riportati la defini-zione del modello del forno, il numero difabbricazione e i dati d...
Pagina 24 - Griglia con dispositivo anti-estrazione; La griglia; non; dalità; Pericolo di ferimento a causa del-; Utilizzare la griglia; Portata massima della griglia 8 kg.
Dotazione 24 Griglia con dispositivo anti-estrazione La griglia non è adatta all'uso con la mo- dalità Microonde . La griglia può esse- re utilizzata con tutte le altre modalitàcon e senza microonde. Pericolo di ferimento a causa del- le superfici calde.Durante i procedimenti di cottura lagrig...
Pagina 25 - Lo
Dotazione 25 Stampi di cottura rotondi Gli stampi rotondi possono danneg-giarsi a causa delle microonde.Non utilizzare gli stampi rotondi conle modalità Microonde , Microonde + Arrostire , Microonde + Therm. plus , Microonde + Grill o Mi- croonde + Grill ventil. . Lo stampo roton...
Pagina 26 - Dispositivi di sicurezza; Blocco accensione; Superfici in PerfectClean; AirFry
Dotazione 26 Accessori per la pulizia e la manuten-zione - Panno in microfibra universale Miele- Detergente per forno Miele Dispositivi di sicurezza - Blocco accensione (v. cap. “Impostazioni”, par. “Sicurez-za”). - Blocco tasti (v. cap. “Impostazioni”, par. “Sicurez-za”) - Ventola di raffreddamen...
Pagina 27 - Al primo avvio; Disponibilità connessione WLAN
Al primo avvio 27 Miele@home Il forno è dotato di un modulo WLANintegrato. Per l'utilizzo sono necessari: - una rete WLAN- la app Miele- un account utente Miele. L'account utente si può creare tramite la appMiele. La app Miele guida l'utente nel collega-mento tra il forno e la rete domesticaWLAN.Dop...
Pagina 28 - Impostazioni di base; Impostare la lingua; Concludere il primo avvio
Al primo avvio 28 Impostazioni di base È possibile eseguire le seguenti impo-stazioni per il primo avvio. Queste impo-stazioni possono essere di nuovo modi-ficate in un momento successivo (v. cap.“Impostazioni”). Pericolo di ferimento a causa del- le superfici calde.Il forno diventa molto caldo qu...
Pagina 29 - Accendere il forno con il tasto On/Off; Selezionare; Confermare con
Al primo avvio 29 Riscaldare il forno per la primavolta Quando si riscalda il forno per la primavolta si possono generare cattivi odori.Questi odori si eliminano riscaldando ilforno vuoto almeno per un'ora. Durante il procedimento di riscalda-mento fare in modo che la cucina siaben arieggiata.Impedi...
Pagina 30 - Impostazioni; Elenco impostazioni; Voce menù; * Impostazione di serie
Impostazioni 30 Elenco impostazioni Voce menù Impostazioni possibili Lingua ... | deutsch | english | ... Posizione Orologio Visualizzazione On * | Off | Spegnimento notturno 24h / 12h 12 h | 24 h * Impostare Illuminazione On“On” per 15 secondi * Off Display Luminosità QuickTou...
Pagina 32 - Accedere al menù “Impostazioni”; Visualizzazione; Illuminazione
Impostazioni 32 Accedere al menù “Impostazioni” Nel menù Altri | Impostazioni è possi- bile personalizzare il vostro forno, adat-tando le impostazioni di serie alle vostreesigenze. Selezionare Altri . Selezionare Impostazioni . Selezionare l'impostazione desidera-ta. È possibile con...
Pagina 34 - Popcorn; Potenze consigliate
Impostazioni 34 MW-Quick (microonde) Per il rapido avvio delle microonde sonopreimpostate una potenza di 1000 W euna durata di cottura di 1 minuto. - Potenza Si possono impostare una potenza dellemicroonde di 80 W, 150 W, 300 W,450 W, 600 W, 850 W o 1000 W. - Durata cott. La durata di cottura massim...
Pagina 35 - Sicurezza; Blocco tasti
Impostazioni 35 Funzionam. suppl. vent. Dopo un procedimento di cottura laventola di raffreddamento continua afunzionare ancora affinché nel vano cot-tura, sul pannello comandi oppure sulmobile non si depositi umidità. - In base alla temperat. La ventola di raffreddamento si disatti-va quando la tem...
Pagina 36 - La voce menù; Attivazione/disattivazione
Impostazioni 36 - Stato connessione Questa impostazione è visibile solo seMiele@home è attivato. Sul displaycompaiono informazioni come qualitàdi ricezione WLAN, nome della rete eindirizzo IP. - Connettere di nuovo Questa impostazione è visibile solo seè attiva una rete WLAN. Resettare leimpostazion...
Pagina 37 - Versione software; Modalità fiera; Impostazioni di serie
Impostazioni 37 - se non compare alcuna segnalazione non è disponibile alcun aggiornamen-to. - Un aggiornamento installato non può essere reso retroattivo. - Non spegnere il forno durante l'aggior- namento. L'aggiornamento viene altri-menti interrotto e non viene installato. - Alcuni aggiornamenti d...
Pagina 38 - Timer; Usare la funzione Timer; Impostare il timer; senza; Modificare il timer
Timer 38 Usare la funzione Timer Il timer è utile per controllare un pro- cedimento di cottura a parte, p.es. lacottura di uova.È inoltre possibile usare il timer anchese sono stati contemporaneamente im-postati tempi per l'avvio o l'interruzioneautomatici di un procedimento di cottu-ra (p.es. per...
Pagina 39 - Menù principale e sottomenù; Menù
Menù principale e sottomenù 39 Menù Valore pro- posto Area Modalità di funzionamento Thermovent plus 160 °C 30–250 °C Arrostire 160 °C 100–230 °C Grill 3 1–3 Microonde 1000 W 80–1000 W Microonde + Therm. plus 300 W 160 °C 80–300 W 30–220 °C Microonde + Grill ventil. 300 W 200...
Pagina 40 - Funzionamento microonde; Funzionamento; Vantaggi delle microonde; - Inoltre gli alimenti si cuociono in gene-; Scelta delle stoviglie; Pericolo di ferirsi a causa della
Funzionamento microonde 40 Funzionamento Nel forno è presente un magnetron chetrasforma la corrente in onde elettroma-gnetiche (microonde). Queste ondevengono distribuite uniformemente nelvano cottura e inoltre riflesse dalle pare-ti in metallo. Le microonde penetrano le pietanze daogni lato. Gli al...
Pagina 41 - Stoviglie idonee
Funzionamento microonde 41 Stoviglie idonee Pericolo di incendio a causa di materiali infiammabili.Contenitori monouso in plastica, car-ta o altri materiali infiammabili posso-no incendiarsi e danneggiare il forno.Non lasciare mai incustodito il fornose per i procedimenti di cottura o ri-scaldamen...
Pagina 42 - fornita; Stoviglie non idonee
Funzionamento microonde 42 Pericolo di incendio a causa di parti in metallo.Parti in metallo come clip metallicheo clip in plastica o carta con filo diferro all'interno possono riscaldare imateriali infiammabili a tal punto chequesti prendono fuoco.Non utilizzare clip metalliche nonchéclip di plas...
Pagina 43 - Test stoviglie
Funzionamento microonde 43 - Bicchieri in plastica con coperchio in alluminio non del tutto rimosso - Vetro cristallo- Posate e stoviglie con decorazioni me- talliche (p.es. bordo dorato, blu cobal-to) - Stoviglie con maniglie cave- Stoviglie in melammina Questo tipo di materiale assorbeenergia e di...
Pagina 44 - Copripiatto/coperchio; Non
Funzionamento microonde 44 Copripiatto/coperchio Suggerimento: Il copripiatto è reperibile in commercio. - Impedisce l'eccessiva evaporazione del liquido, soprattutto se le pietanzevengono riscaldate a lungo. - Accelera il processo di riscaldamento della pietanza. - Impedisce l'essiccarsi della piet...
Pagina 45 - Uso; Modificare la temperatura
Uso 45 Se si dispone la pietanza con la mo-dalità Microonde direttamente sul fondo del vano cottura, il forno si puòdanneggiare.Con la modalità Microonde intro- durre la leccarda in vetro al ripiano 1 edisporre i recipienti per forno a vapo-re sempre sulla leccarda in vetro. Accendere il f...
Pagina 46 - Modificare la potenza delle microonde; Impostare durate di cottura
Uso 46 Modificare la potenza delle microonde Si può modificare la potenza microondenella modalità Microonde e nelle mo- dalità con microonde. La potenza proposta può essere impo-stata in modo permanente secondo leabitudini individuali mediante Altri | Impostazioni | Potenze consigliate...
Pagina 47 - con
Uso 47 Modificare le durate di cottura impo-state Selezionare il tasto sensore . Selezionare il tempo desiderato. Confermare con OK . Selezionare Modificare . Questa voce menù non compare se sidesidera modificare la durata di cottu-ra nelle modalità con le microonde poiché deve essere semp...
Pagina 48 - Preriscaldare il vano cottura; Booster
Uso 48 Preriscaldare il vano cottura La funzione Booster serve per riscaldare rapidamente il vano cottura con alcunemodalità.Il preriscaldamento del vano cottura ènecessario solo per la preparazione dialcune ricette. Introdurre la maggior parte delle pie-tanze nel vano cottura freddo persfruttare ...
Pagina 50 - Categorie; I programmi automatici; Selezionare la categoria desiderata.
Programmi automatici 50 I numerosi programmi automatici ac-compagnano l'utente in modo conforte-vole e sicuro al raggiungimento di risul-tati di cottura ottimali. Categorie I programmi automatici sono suddi- visi in categorie per una migliore panora-mica. Selezionare il programma adattoalla pietan...
Pagina 51 - Altre applicazioni; Suggerimenti; Utilizzare la modalità Microonde
Altre applicazioni 51 Inoltre in questo capitolo ci sono informa-zioni relative alle seguenti applicazioni: - Scongelare- Essiccazione- Riscaldare- Cuocere- Conservazione- Prodotti surgelati/alimenti precotti Scongelare Se le pietanze si scongelano in mododelicato, vitamine e sostanze nutrizionaliri...
Pagina 52 - Scongelare con la modalità Microonde; Quantità
Altre applicazioni 52 Scongelare con la modalità Microonde Alimenti da scongelare Quantità [W] [min] 1 [min] Burro 250 g 80 8–10 5–10 latte 1000 ml 450 12–16 10–15 Torta Margherita (3 pezzi) ca. 300 g 150 4–6 5–10 Torta alla frutta (3 pezzi) ca. 300 g 150 6–8 10–15 Torta al burro (3 pz.) ca. 3...
Pagina 53 - Essiccare; Frutta; Prelevare gli alimenti essiccati
Altre applicazioni 53 Essiccare Essiccare è un tipo di conservazione tra-dizionale ottimo per frutti, alcuni tipi diverdura ed erbette.Il presupposto è che frutta e verdurasiano fresche e mature e non presentinopunti di ammaccatura. Preparare gli alimenti da essiccarespezzettandoli e prima pelando...
Pagina 54 - Riscaldare
Altre applicazioni 54 Riscaldare Leggere attentamente il capitolo “Indi-cazioni per la sicurezza e avvertenze”,par. “Uso corretto”. Pericolo di ferimento a causa del- le pietanze calde.Se si riscaldano troppo alimenti perneonati o bambini, questi possonobruciarsi.Riscaldare gli alimenti per bambin...
Pagina 55 - La modalità; è adatta per; Pericolo di ustionarsi a causa del-
Altre applicazioni 55 Utilizzare la modalità Microonde La modalità Microonde è adatta per riscaldare.Il tempo necessario dipende dalle carat-teristiche, dalla quantità e dalla tempe-ratura di partenza degli alimenti. Gli ali-menti conservati in frigorifero necessita-no di un tempo più lungo per ...
Pagina 56 - Riscaldare con la modalità Microonde
Altre applicazioni 56 Riscaldare con la modalità Microonde Bevanda/Alimento Quantità [W] [min] 1 [min] Bevande (temperatura di consumo60–65 °C) 1 tazza/1 bicchiere (200 ml) 1000 0.50–1.10 – Biberon (latte) 2 ca. 200 ml 450 0.50–1.00 3 1 Alimenti per neonati e bambini 3 1 vasetto (200 g) 450 0....
Pagina 57 - Cuocere; - Per la cottura utilizzare possibilmente
Altre applicazioni 57 Cuocere Leggere attentamente il capitolo “Indi-cazioni per la sicurezza e avvertenze”,par. “Uso corretto”. Se si riscaldano o cuociono alimenticon pelle o buccia resistente, comepomodori, würstel, patate, melanza-ne, questi alimenti possono scoppia-re.Bucherellare questi alimen...
Pagina 58 - Cottura con la modalità Microonde
Altre applicazioni 58 Cottura con la modalità Microonde Minestre/piatti uniciVerdura [g] 850 W [min] + 450 W [min] 1 [min] Stufato 1500 10 + 20 1 Zuppa/minestra 1500 11 + 24 1 Piselli 500 5 + 10 2 Piselli (surgelati) 450 5 + 12 2 Carote 500 5 + 10 2 Broccoli a rosette 500 6 + 8 2 Broccoli (s...
Pagina 59 - Conservazione; Usare la modalità Thermovent plus; Conserve di frutta e verdura
Altre applicazioni 59 Conservazione Pericolo di infezioni a causa della formazione di germi.Con un solo procedimento di conser-vazione di legumi e carne le spore delbatterio clostridium botulinum nonvengono soppresse in modo suffi-ciente. In questo modo si possonoformare le tossine che causano int...
Pagina 60 - Usare la modalità Microonde
Altre applicazioni 60 / / Frutta –/– 30 °C 25–35 min cetrioli –/– 30 °C 25–30 min Rapa rossa 120 °C 30–40 min 30 °C 25–30 min Fagioli (verdi,gialli) 120 °C 90–120 min 30 °C 25–30 min / Temperatura e durata di conservazione, da quando compaiono le bollicine / Temperatura e durata del riscald...
Pagina 61 - Scaldare stoviglie
Altre applicazioni 61 Prodotti surgelati/alimenti precotti Suggerimenti per torte, pizza, baguette - Cuocere torte, pizze o baguette usan- do la griglia ricoperta di carta forno. - Selezionare le temperature più basse consigliate sulla confezione. Suggerimenti per patatine fritte, croc-chette e simi...
Pagina 62 - Cuocere pane e dolci; Suggerimenti per arrostire; - Evitare di usare stampi chiari, sottili in; Scegliere la temperatura; Indicazioni relative alle modalità; Utilizzare Programmi automatici
Cuocere pane e dolci 62 Il trattamento delicato degli alimentigiova alla salute.Torte, pizze, patate fritte e alimenti si-mili dovrebbero risultare dorati e nontroppo scuri. Suggerimenti per arrostire - Impostare la durata di cottura. La cot- tura di pane e dolci non deve essereselezionata troppo te...
Pagina 63 - Utilizzare Thermovent plus
Cuocere pane e dolci 63 Utilizzare Thermovent plus Si può utilizzare qualsiasi stampo in ma-teriale termoresistente.Utilizzare questa modalità se si desideracuocere dolci o pane contemporanea-mente su più ripiani. 1 ripiano: introdurre la torta neglistampi nel ripiano 1. 1 ripiano: introdurre...
Pagina 64 - Arrostire; Consigli per la cottura
Arrostire 64 Consigli per la cottura - Il preriscaldamento del vano cottura è necessario solo con roastbeef e fi-letto. In generale il preriscaldamentonon è necessario. - Per arrostire la carne utilizzare un re- cipiente di cottura chiuso p.es. una casseruola. La carne internamente ri-mane succosa. ...
Pagina 66 - Grigliare; Consigli per grigliare
Grigliare 66 Pericolo di ferimento a causa del- le superfici calde.Se si griglia con lo sportello del fornoaperto, l'aria del vano particolarmen-te calda non viene più convogliata au-tomaticamente alla ventola di raffred-damento e raffreddata. Gli elementidi comando diventano caldi.Chiudere quindi...
Pagina 67 - Per la
Grigliare 67 Selezionare la durata di cottura Grigliare fette di carne e di pesce pia-ne per ca. 6-8 minuti per lato.Accertarsi che le fette siano dellostesso spessore affinché i tempi dicottura non siano troppo differentil'uno dall'altro. Grigliare pezzi più spessi per ca. 7–9minuti per lato....
Pagina 68 - Detergenti non idonei
Pulizia e manutenzione 68 Pericolo di ferimento a causa del- le superfici calde.Il forno diventa molto caldo quando èin funzione. È quindi possibile bru-ciarsi a contatto con le resistenze, ilvano cottura e gli accessori.Attendere che le resistenze, il vanocottura e gli accessori si siano raf-fred...
Pagina 69 - Residui di sporco come; Rimuovere lo sporco normale; Rimuovere lo sporco ostinato
Pulizia e manutenzione 69 Se lo sporco agisce a lungo, in deter-minate circostanze diventa impossibileeliminarlo. L'utilizzo ripetuto dell'elet-trodomestico senza alcuna pulizia puòrendere lo sporco ostinato.Eliminare subito lo sporco. Solo la leccarda in vetro è adatta per illavaggio in lavastovigl...
Pagina 73 - viene aperto lo
Cosa fare se... 73 Problema Causa e rimedio Se lo sportelloviene aperto nelcorso di un proce-dimento di cotturacon la modalità Microonde , non si percepisce al-cun rumore. Non si tratta di un guasto. Se nel corso di un procedimentodi cottura con la modalità Microonde viene aperto lo sportello, l...
Pagina 74 - È stata selezionata l'impostazione
Cosa fare se... 74 Problema Causa e rimedio Torte o altri pro-dotti da forno pre-sentano differenzenella doratura. È stata selezionata una temperatura sbagliata o è stato scel-to un ripiano sbagliato. La doratura presenta sempre una certa differenza. Se la diffe-renza di doratura è molta, verifica...
Pagina 75 - Assistenza tecnica; Contatti in caso di guasto
Assistenza tecnica 75 Sotto www.miele.it/c/service-10.htmsi possono leggere le informazioni rela-tive alla risoluzione autonoma di guastie ai pezzi di ricambio Miele. Contatti in caso di guasto In caso di guasti che non si è in grado dirisolvere da soli, contattare il negoziospecializzato Miele o il...
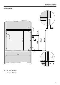
Pagina 76 - Installazione; Le misure sono espresse in mm.; Incasso in un mobile colonna o base
Installazione *INSTALLATION* 76 Misure d'incasso Le misure sono espresse in mm. Incasso in un mobile colonna o base Se l'apparecchio viene installato sotto un piano cottura, attenersi alle indicazionirelative all'incasso e all'altezza del piano cottura.
Pagina 78 - Allacciamenti e aerazione; Vista frontale
Installazione *INSTALLATION* 78 Allacciamenti e aerazione a Vista frontale b Lunghezza cavo di alimentazione = 2.000 mm c Nessun allacciamento in questa area d Sezione di aerazione min. 150 cm ²
Pagina 79 - Montare il forno; Allacciare il forno alla rete elettrica.; Allacciamento elettrico; dati necessari per il collegamento; sono riportati sulla targhetta
Installazione *INSTALLATION* 79 Montare il forno Allacciare il forno alla rete elettrica. Spingere il forno nel mobile base e re-gistrarne la posizione. Aprire lo sportello e fissare il fornocon le viti allegate alle pareti lateralidel mobile. Allacciamento elettrico Il forno è dotato di un ca...
Pagina 81 - Tabelle per la cottura; Impasto soffice; Dolci/Prodotti da forno; muffin
Tabelle per la cottura 81 Impasto soffice Dolci/Prodotti da forno (accessori) + [°C] + [W] [min] muffin 150–160 2 35–45 Small cake (1 leccarda in vetro)* 150 – 2 25–35 Small cake (2 leccarde in vetro)* 140 – 2+3 35–45 Torta Margherita (stampo a cassetta, 30 cm) 1 160–170 + ...
Pagina 82 - Impasto lavorato; Torta alla frutta con glassa (1 leccarda in vetro)
Tabelle per la cottura 82 Impasto lavorato Dolci/Prodotti da forno (accessori) [°C] [min] Pasticcini (1 leccarda in vetro) 140–150 2 20–30 Biscotti di pasta frolla (1 leccarda in vetro)* 140 – 2 40–50 Biscotti di pasta frolla (2 leccarde in vetro)* 140 – 2+3 45–55 2 Base per torta ...
Pagina 83 - Impasto al lievito; Impasto olio e ricotta
Tabelle per la cottura 83 Impasto al lievito Dolci/Prodotti da forno (accessori) + [°C] + [W] [min] Gugelhupf (ciambellone) (stampo per ciam-bellone, 24 cm) 140–150 1 55–65 Christstollen (dolce tipico natalizio) (1 leccarda in vetro) 150–160 1 60–70 Torta sbrisolona con/sen...
Pagina 84 - Impasto per Pan di Spagna; Pan di Spagna leggero (tortiera a cerniera,; Impasti per bignè, pasta sfoglia, meringhe
Tabelle per la cottura 84 Impasto per Pan di Spagna Dolci/Prodotti da forno (accessori) [°C] [min] Disco di Pan di Spagna (2 uova, tortiera a cer-niera, 26 cm) 170–180 1 – 1 15–25 Disco di Pan di Spagna (4 uova, tortiera a cer-niera, 26 cm) 170–180 1 – 1 30–40 Pan di Spagna leg...
Pagina 85 - Sfiziosità salate; Pietanza; Tortino alle cipolle (1 leccarda in vetro)
Tabelle per la cottura 85 Sfiziosità salate Pietanza (accessori) + [°C] + [W] [min] Crostata salata (1 leccarda in vetro) 190–200 2 2 30–40 Tortino alle cipolle (1 leccarda in vetro) 180–190 + 150 – 2 30–40 Pizza, impasto al lievito (1 leccarda in ve-tro) 160–170 + 80 – 2 25–...
Pagina 86 - Manzo; Burger
Tabelle per la cottura 86 Manzo Pietanza (accessori) [°C] [min] 8 [°C] Brasato di manzo, ca. 1 kg (cas-seruola con coperchio) 2 150–160 1 120–130 6 – Filetto di manzo, ca. 1 kg 1 2 150–160 4 – 1 30–70 45–75 Roastbeef, ca. 1 kg 1 2 150–160 4 1 25–70 45–75 Burger *,1 3 3 5 – 2 ...
Pagina 87 - Vitello; Maiale
Tabelle per la cottura 87 Vitello Pietanza (accessori) + [°C] + [W] [min] 3 [°C] Brasato di vitello, ca. 1,5 kg (cas-seruola con coperchio) 1 160–170 1 120–130 2 – 1 160–170 + 150 1 80–90 2 – Filetto di vitello, ca. 1 kg (leccar-da in vetro) 1 150–160 1 20–50 45–75 M...
Pagina 90 - Indicazioni per organismi di controllo; Pietanze test
Indicazioni per organismi di controllo 90 Pietanze test secondo EN 60350-1 Pietanze test (accessori) [°C] [min] Small cake (1 leccarda in vetro 1 ) 150 – 2 25–35 Small cake (2 leccarde in vetro 1 ) 140 – 2+3 35–45 Biscotti di pasta frolla (1 leccarda in vetro 1 ) 140 – 2 40–50 Biscot...
Pagina 92 - Dati tecnici; Dichiarazione di conformità; Banda di frequenza del modulo WLAN; Diritti d'autore e licenze per il modulo di comunicazione
Dati tecnici 92 Dichiarazione di conformità Miele dichiara che questo forno è conforme alla direttiva 2014/53/UE. Il testo completo della dichiarazione di conformità UE è disponibile ai seguenti indi-rizzi internet: - Prodotti, download, www.miele.it- Service, richiedere informazioni, istruzioni d'u...