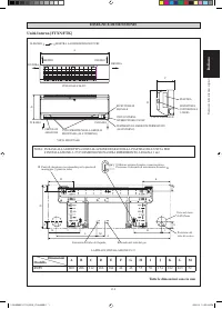
Pagina 3 - Italiano; Tutte le dimensioni sono in mm; DISEGNI E DIMENSIONIS; Dimensioni
NOTA: IN BASE ALLA EFFETTIVA INSTALLAZIONE DESIGN DELLA PIASTRA DELL'UNITÀ PER L'INSTALLAZIONE A 25/35 DIMENSIONE PIASTRA RIFERIMENTO A PAGINA 1 &2. 2-1 Italiano T raduzione delle istruzioni originali Unità Interna [FTXN/FTK] A B VISTA FRONTALE VISTA DALL’ALTO C VISTA LATERALE H I B IL SEGNO MOS...
Pagina 6 - L’apparecchio è precaricato in fabbrica.; NORME DI SICUREZZA; MANUALE D’INSTALLAZIONE; AVVISO
2-4 ! AVVERTENZA ! CAUTELA L’installazione e la manutenzione devono essere eseguite da personale qualificato, competente in questo genere di apparecchi e al corrente delle leggi e regolamenti in vigore.Tutti gli allacciamenti elettrici devono essere eseguiti conformemente alla regolamentazione elett...
Pagina 8 - DIAGRAMMA PER L’INSTALLAZIONE; Unità Interna; Unità Esterna; Due lati rivolti alla parete; Tre lati rivolti alla parete
DIAGRAMMA PER L’INSTALLAZIONE 2-6 INSTALLAZIONE DELL’UNITÀ ESTERNA (RXN/RK 25/35) Unità Interna Filtro aria M4 x 12L Pannello anteriore 30mm o più dal soffitto Unità Esterna 50mm o più dalle pareti(su entrambi i lati) Stuccare lo spazio del foro del tubocon stucco da legno. Tagliare il tubo di isola...
Pagina 9 - (Solo Per Le Versioni In Pompa Di Calore); Distanze di rispetto/sicurezza; Se esistono ostacoli di più di 2m di altezza o una qualsiasi
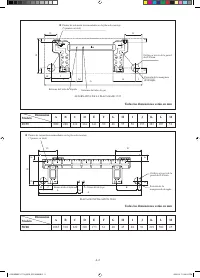
Rimuovere la copertura laterale per effettuare i collegamenti elettrici e frigoriferi SPINGERE E TIRARE VERSO L’ALTO BASE A RACCORDO A GOMITO RACCORDO A GOMITO TAPPO 2-7 Italiano Aria di ritorno Aria Di Scarico A B Ostacolo Aria di ritorno Pannello Di Servizio C D Ostacolo Ostacolo Ostacolo Lavoro d...
Pagina 10 - Tubo laterale destro, posteriore destro o in basso a destra; INSTALLAZIONE DELL’UNITÀ INTERNA
L’unità interna deve essere installata in modo tale da evitare corto circuito l’aria fredda scaricata con l’aria calda di ritorno. Si prega di seguire il gioco installazione mostrata in figura. Installare l’unità interna in modo che non si trovi ad ess ere direttamente esposta ai raggi del sole o in...
Pagina 11 - Drenaggio Dell’acqua; CAUTELA; • Non installare l’unità ad altitudini superiori a 2000m
Piastra di montaggio Fermo Struttura in basso Segno (parte posteriore) Griglia anteriore Perdite di liquido Ritenzione dell’acqua Il tubo pesca nell’acqua Drenaggio Corretto Sbagliato Perdite di liquido Perdite di liquido Sbagliato Sbagliato Tubo Di Scarico Condensa Il tubo di drenaggio interno deve...
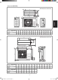
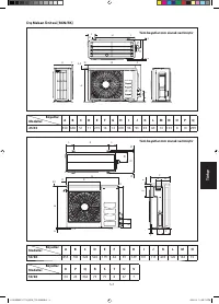
Pagina 12 - Lunghezza dei tubi consentita; Modello
2-10 L E Carica di refrigerante addizionale [g] per la lunghezza di 1m aggiuntivo secondo quanto indicato in tabella * Accertarsi di aggiungere la quantità corretta di refrigerante aggiuntivo. In caso contrario si potrebbe riscontrare una riduzione delle prestazioni. Attenzione: Il refrigerante prec...
Pagina 13 - Pollici; CONDOTTI DEL REFRIGERANTE
2-11 Italiano Meccanica Delle Condutture E Tecnica Di Svaso Non usare condotti di rame contaminati o danneggiati. Se qualsiasi tubo, evaporatore o condensatore è stato esposto o sia stato aperto per 15 secondi o più, bisogna aspirare l’aria dal sistema. Come regola generale, non rimuovere le parti i...
Pagina 14 - ALLACCIAMENTI ELETTRICI; Fissare il manicotto di isolamento
2-12 * Se la lunghezza del cavo supera 2m, usare un cavo più grande. ALLACCIAMENTI ELETTRICI IMPORTANTE : * I valori sopra indicati hanno solo un carattere indicativo. Devono quindi essere verificati e sceltiin modo da rispondere alle leggi vigenti e ai regolamenti locali. Inoltre, dipendono dal tip...
Pagina 15 - Cautela; Operazioni Di Carica
2-13 Italiano PRECAUZIONI SPECIALI QUANDO SI OCCUPANO DELL’UNITÀ DI R410A R410A è un nuovo refrigerante di HFC che non danneggia lo strato di ozono. La pressione di funzionamento di questo nuovo refrigerante è 1,6 volte superiore rispetto al refrigerante convenzionale (R22), in tal modo è essenziale...
Pagina 16 - Funzione; SU; Ricevitore A Infrarossi; Unità di raffreddamento / Unità Pompa di Calore; L’INDICATORE ACCENDE; da ON a OFF; Segnale bip lungo; Altri; Segnale bip breve
2-14 ON/OFF RAFFREDDISI/CALORE (VERDE/ROSSO) Funzione VERDE Modalità di Raffreddamento ROSSO Riscaldamento ROSSO Riscaldamento automatico VERDE Raffreddamento automatico Accensione temporizzatore Accensione modalità riposo VERDE Modo Fan inserito VERDE Modo Dry inserito ROSSO Sbrinamento VERDE Error...
Pagina 18 - FILTRI DELL’ARIA; stagioni secche
2-16 FRONT Parte rientrante sull’unità principale Filtro di apatite al titanio (Filtro Bio) Concetto integrato Filtro Aria Scambiatore di calore Parte integrata del filtro Bio Filtro di apatite al titanio FILTRI DELL’ARIA Telaio del filtro Linguetta Filtro aria Filtro Bio con funzioni batteriostatic...
Pagina 19 - ASSISTENZA E MANUTENZIONE; no; Componenti
2-17 Italiano Asse di rotazione Parte rientrante sull’unità principale ASSISTENZA E MANUTENZIONE Aprire il pannello anteriore. Tenere il pannello sulle parti rientranti dell’unità principale (2 parti rientranti sui lati destro e sinistro) e sollevarlo fi nché si blocca. 1. • Rimuovere il pannello an...
Pagina 20 - GUASTI E RIPARAZIONI; Guasto; Il condizionatore non funziona.; Se il guasto persiste, rivolgersi al servizio di assistenza.
2-18 Per richieste di pezzi di ricambio, contattare il rivenditore autorizzato. Non appena si nota che il condizionatore funziona male, spegnerlolo immediatamente. Qui di seguito, sono elencati alcuni guasti minori con le relative cause. GUASTI E RIPARAZIONI Guasto Origine / Azioni Il compressore no...